Franziskaner
1646-1802 existierte in Zons eine Niederlassung (1646-1649 Residenz, 1649-1802 Konvent) von Franziskaner-Rekollekten, die 1647 der Kölnischen Ordensprovinz inkorporiert wurde. Zunächst in einem Privathaus in Zons (Haus des Stadtschreibers Heinrich Westhoven) und dann in einem angekauften Wohnhaus untergebracht, konnten die Konventualen 1658 einen zur Hälfte fertiggestellten Kloster-Neubau neben dem Juddeturm beziehen (vollendet 1665). 1661 war Baubeginn der Klosterkirche (im Volksmund: "Paterkirche"), die 1666 geweiht wurde. Das Kloster trug den Namen "Marienhof". Die Hauptaufgabe der Gemeinschaft war die Seelsorge (insbesondere durch Katechese) im rechtsrheinischen Bergischen Land, um dem Vordringen des Protestantismus entgegenzuwirken (katholische Reform). Im Zuge der Säkularisation wurde das Kloster 1802 aufgehoben.
Vorverhandlungen und erste Jahre der Niederlassung (1645-1654)
Bürgerschaft und Rat der Stadt Zons bemühten sich 1645 um eine Niederlassung von Franziskanern in Zons. Sie erhofften sich von diesen angesichts des desolaten Zustands der Stadt im Inneren wie im Äußeren, wahrscheinlich hauptsächlich aufgrund der Besatzungen und Belagerungen im Dreißigjährigen Krieg, eine Hebung der sittlich-moralischen und wissenschaftlichen Bildung. Die Kinder sollten in Glauben, Sitten, Disziplin und Wissenschaften eingeführt werden. Franziskaner-Minoriten bemühten sich in Konkurrenz zu Franziskaner-Observanten um die Genehmigung zur Niederlassung. Erstere gingen auch ausdrücklich auf das Bildungsinteresse der Bevölkerung ein und versprachen, Schulunterricht zu erteilen. Obwohl sich Rat und Bürgerschaft vor diesem Hintergrund beim Domkapitel nachdrücklich für eine Niederlassung von Franziskaner-Minoriten (Konventualen) aussprachen, entschied man sich für die bereits zuvor vorgeschlagenen Observanten. Dem Unterrichtsinteresse wird das Domkapitel also keine so hohe Bedeutung beigemessen haben wie die örtliche Bevölkerung.[1]
Für die Niederlassung von Franziskaner-Rekollekten in Zons hat sich besonders der Domherr Georg von Eyschen eingesetzt, der sich später auch für die Rekollektenniederlassung in Boppard einsetzte.[2] Er versprach für den Fall der Niederlassung, die hierzu nötigen Bauten zu stiften. Der spätere Guardian (Klostervorsteher) Tilmann Streidt machte eine Erkundungsreise, woraufhin die Kölner Franziskanerrekollektenprovinz ihre grundsätzliche Bereitschaft zur Niederlassung erklärte, und im Juni 1646 beschloss das Zwischenkapitel der Provinz auf Vorschlag von Pater Ivo Portz (Vorsteher des Klosters Bethlehem) die Gründung der Niederlassung. Darauf erfolgte im Oktober 1646 die Zustimmung der örtlichen landesherrlichen Beamten (Zöllner, Kellner, Schultheiß und Gerichtsschreiber) für die Einwohnerschaft. Pater Wilhelm Sinzich, bisher Vikar im Kloster Bethlehem, wurde zum ersten Vorsteher der Niederlassung bestimmt. Er traf am 31. Oktober 1646 mit zwei Brüdern und einem Laienbruder für die nötigen Vorbereitungen in Zons ein, wo sie von Oberst Goltstein und seiner Gemahlin zur Tafel geladen wurden. Der Gerichtsschreiber Heinrich Westhoven nahm sie in sein Haus auf, in dem sie einige Tage wohnten.
Georg von Eyschen kaufte zwischenzeitlich ein Haus der Erben des Zonser Bürgermeisters Johannes Sturm, dem er zu Ehren der Jungfrau Maria den Namen "Marienhof" gab. Leider ist der exakte Standort des Hauses nicht überliefert.[3] Der Patron ließ alle notwendigen Materialien zu dieser Niederlassung beschaffen. Am 2. November nahmen die Brüder das Haus erstmals in Besitz, das zu diesem Zeitpunkt noch in einem völlig ruinösen Zustand war, denn zuvor hatten Soldaten das Haus bewohnt und heruntergewirtschaftet. Mit großem Eifer gingen die Brüder an die Renovierung: Der Viehstall wurde zu einer Kapelle mit Marienaltar umgebaut, und es wurde eine Bierbrauerei eingerichtet. Die vorhandenen kleinen Fenster, die zu wenig Licht hineinließen, ersetzte man durch zwei große Fenster, die Georg von Eyschen und Oberst Goltstein stifteten.
Während der Zeit der Renovierung gaben der Landesherr und das Domkapitel ihre Zustimmung zur Niederlassung: Kurfürst Ferdinand erteilte diese am 11. November 1646, adressiert an den Pater Provinzial Heinrich Lotzius, und das Domkapitel stimmte am 14. November zu.[4]
Am 19. November konnten die Brüder das renovierte Haus beziehen, und wenige Wochen später, am 21. Dezember, zelebrierten die Patres das erste Mal die heilige Messe in der Kapelle.[5] Diese Kapelle hat rasch eine große Anziehungskraft erlangt, wie etwas jüngere Zahlen vedeutlichen: Allein in der Zeit vom 30. Mai 1655 bis zum 12. November 1656 wurden 9.200 Kommunionen ausgeteilt.
Die Niederlassung wurde am 20. Oktober 1647 (Intermedium) der Kölnischen Ordensprovinz inkorporiert. Ihre Hauptaufgabe war die seelsorgerische Wirkung, schwerpunktmäßig durch Katechese, im rechtsrheinischen Bergischen Land, um dadurch dem Vordringen des Protestantismus entgegenzuwirken.[6]
Von der Kloster-Grundsteinlegung bis zur Weihe der Klosterkirche (1654-1666)
Georg von Eyschen erwarb für den geplanten Klosterneubau ein größeres Grundstück neben dem Juddeturm. Dieses lag im Bereich des ehemaligen Vorburggrabens, für den neben den üblichen Ausgaben besondere Grundsteuern erhoben wurden: Neben den üblichen Steuern an die Kellnerei lastete auf dem Grundstück die Verpflichtung, jährlich einen Malter Korn als Almosen an die Franziskaner in Brühl zu entrichten. Letzteres wurde den Konventualen erlassen.[7] Das Domkapitel wurde zudem wiederholt um Nachlass der auf dem Bauplatz lastenden Steuer von 2 ½ Maltern Weizen und einer Henne gebeten. Es ist nicht bekannt, ob auch dieser Bitte entsprochen wurde.
In der beabsichtigten Nutzung des Grundstücks für den Klosterbau sah die Bürgerschaft erhebliche Beeinträchtigungen für die Stadt, weshalb sie sich mit einem Beschwerdeschreiben ("Gravamina") an das Domkapitel wandte: Das Grundstück umfasste 12 Hausplätze, und für jeden waren jährlich 12 Albus an Simplen und 2 Gulden an Schatzung (Köttersmark) zu entrichten. Ferner musste die Stadt durch die beabsichtigte "Umnutzung" auch auf die auf den Hausplätzen ruhenden Wacht- und Spanndienste, Einquartierungslasten usw. verzichten, denn diese galten für die Klostergeistlichen nicht. Aufgrund der schweren Schäden durch den Stadtbrand 1620, die Zerstörungen durch die Belagerungen Ende des Dreißigjährigen Krieges und den Umstand, dass ein großer Teil der Stadt noch immer wüst lag, waren die finanziellen Verhältnisse der Stadt ohnehin sehr geschwächt, "daß unß kaum darauß zu erretten wißig, ja fast ohnmöglich". Die Bürgerschaft bat daher um eine Reduzierung der Simpels- und Schatzsteuer in Höhe der hierdurch wegfallenden Einnahmen.[8] Wie in dieser Angelegenheit entschieden wurde, ist nicht bekannt. 1654 beschloss man nach vielen Mühen und Beschwerden die Grundsteinlegung für das zu errichtende Kloster.
Die Grundsteinlegung fand am 25. Oktober statt. Der Amtmann Franz Herzog von Lothringen hatte zwar seine Teilnahme zuvor versprochen, ließ sich dann jedoch wegen dringender Geschäfte entschuldigen. Er beauftragte den Patron Georg von Eyschen mit der Grundsteinlegung. Der Guardian Tillmann Streidt eilte nach Brühl, um die erzbischöfliche Erlaubnis einzuholen, die am 20. Oktober erfolgte. Auch das Domkapitel gab seine Zustimmung.
Am Abend vor der Grundsteinlegung wurde eine feierliche Prozession durch die Straßen der Stadt veranstaltet, an der viele benachbarte Guardiane und der Patron Georg von Eyschen teilnahmen. Am Festtag selbst, Sonntag, 25. Oktober 1654, hielt der Patron um 9 Uhr ein feierliches Hochamt in der Kapelle des Marienhofs. Anschließend wurde unter dem Läuten der Kirchenglocken von St. Martinus wieder eine Prozession durch den Ort veranstaltet, bei der zwei Jünglinge, bekleidet mit kleinen Dalmatiken, den Grundstein trugen. Am Schluss folgte der in ein Pluviale gekleidete Stifter und Domherr von Eyschen. Auf dem Bauplatz war ein Gabentisch neben einem tags zuvor aufgestellten Kreuz vorbereitet. Dort angekommen, wurde eine Predigt gehalten. Anschließend erfolgte die Verlesung der Schreiben des Erzbischofs und des Domdechanten und Amtmanns Franz Herzog von Lothringen, woraufhin der Stifter den Grundstein nach dem Pontificale Romanum segnete, und der Diakon verlas die für den Grundstein bestimmte Urkunde.
Anschließend legte Georg von Eyschen unter Assistenz von Dr. jur. utr. Heinrich Oeckhoven (Sekretär des Domkapitels) und Dr. jur. Wilhelm Grüter aus Köln den ersten Stein im Namen des Erzbischofs und des Amtmanns und Domprobstes Franz von Lothringen in das Fundament. Diesem folgten der Pater Provinzial und mehrere Guardiane der benachbarten Konvente, dann das Volk, jeder nach seinem Stande. Die Ehefrau des Kommissars der Stadt Zons Heinrich de St. Georgio, Gertrud geborene Habersack, stiftete eine silberne Monstranz. Der Erzbischof schenkte 400 Goldgulden, und Dr. jur. Wilhelm Grüter stiftete ein Fenster. Die Feier endete mit dem "Te Deum" unter Kanonendonner.
Der Pater Provinzial machte für den Klosterbau (inklusive Klosterkirche) genauere Vorschriften, die er in einer ausführlichen Baubeschreibung (Bauplan) niederschrieb[9]:
- Vorschrifft deß Closters Zonß wie daßselbe von R. P. Provincial angeordtnet und bekräfftiget alßo zu bawen wie folget etc.:
- Die Kirch alda soll ungefehr fünff und siebentzig Schue [21,56 m] lang werden, unndt dreyssig Schu [8,62 m] breit im Lichten.
- Der Chor lang ungefehr dreissig fünff Schue [10,06 m], hirin seint gerechnet vor die Stuel siebenzehen undt ein halben Schue [5,03 m], von dem hohen Altarstein, so wider die Haubtmaur anrührt, vier und ein halben Schue [1,29 m] vor die Maur. Der oberste Tridt, da der Prister aufstehet, drey und ein halben Schue [1,01 m], for die andere zwen Trid ieden fünffzehn Zoll [0,36 m].
- Die Kirch soll oben mit einem rundten Tabellath [Holztafeln] und bretterem Gewölb werden zehen oder zwelff Schu [2,87 m bzw. 3,45 m] hoch in daß Tach, alßdan werden die Mauren ungefehr sechß und dreyssig Schue [10,35 m] hoch, drey oder vierthalben Schu [0,86 m bzw. 1,15 m] dick nach dem es der Tach-Stuel erfordern wirdt, wan es vonnöthen, mit eissenen Stangen versehen, oder die Mauren ein halben Schue [0,14 m] dicker machen alß sonsten.
- Man soll drey oder vier Löcher oben im Gewölb machen, zwey Schue [0,57 m] rundt oder vierkäntigt, Lufft in die Kirch dardurch zu suchen.
- Der Klockenthurn acht Schue [2,30 m] weit, zehen Schue [2,87 m] hoch uber daß Tach mit dem Haubt-Gesümbs, die Brustrigel sollen drey schue [0,86 m] hoch vom understen Stern gemacht werden.
- Die Helmstang oder die Spitz des Thurnß zwantzig Schue [5,75 m] hoch biß unter den Knopff: sambt einer Trap biß an die Klock, daß man ohne Gefahr darzukommen kan.
- Ein Kirchenfenster achtzehen Schue [5,17 m] hoch, fünff und ein halben Schue [1,58 m] weit, vierzehen Schue [4,02 m] hoch von dem Bodem anfangent.
- Alle Fenster sollen oben und unden zwen Flügell haben, die man zur Noth mit Schnüren uber kleine Rölger auf- und zuzihen kan.
- Daß Kirchen-Tach auffrecht zwantzig unndt [Lücke im Text] Schue [5,75 m+x].
- Der Platz vor dem Closter und Kirch soll umb fünff virtel Schue [0,36 m] höcher alß die gemeine Straaß gelegt werden abhangent, daß das Wasser biß in die gemeine Straaß lauffen kann, alßdan vier Auftrid oder Trappen, ieden sieben Zoll [0,17 m] in die Kirch und Closter.
- Ein Aufftrid an die Communicanten-Banck, der verursacht auch einen Auftrid auß dem Closter in den Chor.
- Deß Closters Baw soll an drey Seiten ein und dreyssig Schue [8,91 m] breit sein mit der Mauren, welche im understen Stockwerck zwey und ein halben Schue [0,72 m] dick, im obersten zwey Schu [0,57 m] dick sein sollen.
- Deß Closters Tach auffrecht zwantzigfünff und ein halben Schu [7,33 m].
- Der Creutzgarten viertzig Schue [11,50 m] in quatro.
- Der Creutzgang sieben Schue [2,01 m] weit, zwelff Schu [3,45 m] hoch biß unter die Balcken.
- Die underste Fenster alß Refender [Refektorium: Speisesaal] und Creutzgang sechß Schue [1,72 m] hoch, drey und ein halben Schue [1,01 m] weit, unden allein Hawstein.
- An den Seiten soll daß Gewenn [Wand] und Rabath mit Zigelsteinen gemauret werden.
- Die Fenster im Creutzgang sollen vier Schu [1,15 m] hoch von dem Boden gesetzt werden, die andere, die außwendig kommen, alß Küchen, Refender [Speisesaal] und Gastkammer, vier und ein halben Schue [1,29 m] hoch vom Boden, auß dießer Ursach, daß man außwendig nit einsehn kan, aber inwendig außsehen ist nit hinderlich.
- Die Thür zu deß Klosters Eingang acht Schu [2,30 m] hoch, vier Schu [1,15 m] weit, sambt einem Uberlicht, zwey und ein halben Schu [0,72 m] hoch mit der Mittellbanck.
- Die Kirch-Thür sechß Schu [1,72 m] weit, neun und ein halben Schu [2,73 m] hoch.
- Die andere Thüren drey und vierthalben Schu [0,86 m bzw. 1,15 m] weit, sieben Schue [2,01 m] hoch.
- Daß Dörmeter [Dormitorium: Schlafraum] soll sechß Schu [1,72 m] breit sein, acht und ein halben Schu [2,44 m] hoch biß under die Balcken.
- Ein Zell nach dem Creutzgarten neun Schue [2,59 m] lang, zehen Schue [2,87 m] breidt, allein an der Seitten, da die Bibliotheck gesetzt wirdt.
- Die andere Zellen, so außwendig kommen gegen denen im Creutzgarten uber, eylff Schue [3,16 m] lang, zehen Schu [2,87 m] breit.
- Ein Zellen-Thür sechß und ein virtel Schu [1,80 m] hoch, zwey und ein halben Schu [0,72 m] weit.
- Ein Zellenfenster vier Schue [1,15 m] hoch, zwey und drey virtell Schue [0,80 m] weit, drey und ein virtel Schu [0,93 m] hoch von dem Boden.
- Die Fenster, so auff dem Dörmeter Licht geben, sollen drey und ein viertel Schu [0,93 m] weit sein, vier Schu [1,15 m] hoch, alle mit einem schidtrechten [scheitrechten] Bogen ein Zoll [2,4 cm] hoch gesprengt.
- Die Glaßrahmen sollen unden zwen Flügell haben, zwey und ein halben Schu [0,72 m] hoch, daß Oberlicht soll in der Rahm verbleiben, die Rahmen so dick, daß sieben auß einem Schue [ca. 4 cm]. Die Fenster-Bänck sollen allein von Hawstein und ingefeldt werden.
- Eß sollen keine Stueben vor die PP Guardianen und Hospites gemacht werden, allein ein warm Stueb vor die Gemein, ein Stüebgen vor die Krancken zu der Infirmarii, und ein Stüebgen neben R. P. Provincials-Zell sambt einem Secreth, wan es füglich darbey sein kan.
- Dieße folgente Zimmer müssen notwendig unden dem Creutzgang gleich sein, alß Pforten und Sprächkammer, Capittelhauß, daß Siegenhauß [Krankenhaus] mit einem Stüebgen, Gastkammer vor unßere Patres mit einem Camin, Küch und Refender. Ein Gastkammer mit einem Camin vor frembde Hospites [Gäste], darin zwey Bethlaten stehen können, iedweder abgesondert, sambt einem Secreth, wan es füglich alda kan gemacht werden. Sacristey, ein Kerker, ein Gang in den Garten, zwey gemechlige und lichte Trappen auf daß Dormeter, ein iedes Gemach nach seiner Noturfft.
- Daß Wäschhauß soll under dem Gang des Secrets gemacht werden.
- Die Wagen-Pfordt an das End deß Gartens an die Stadtmaur.
- Daß Brawhauß soll in den Winckel deß Gartenß an die Stadtmaur und Schloß gesetzt werden.
- Wan der Chor dreyssig fünff Schu [10,06 m] lang vom Chor an alda die Neben-Altär sambt der Communicantenbanck undt Scheidtmaur am Chor sechszehen Schu [4,60 m] lang, so bleibt die Vorkirch fünfftzig acht Schu [16,67 m] lang biß an die Communicantenbanck.
- Daß Tach im Creutzgang soll an vier Seithen mit bleien Cändel [Dachrinnen] und Rühren [Rohren] gemacht werden, damit daß uberflüssige Wasser biß auf die Erdt durch einen gemaurten Guß oder Canal under einem Baw in der Erden durchgeleidet biß in die Straaß, damit es die Mauren nit so balt verfaulet.
- Daß soll auf daßwenigst an Seiten des Closters unndt Kirch mit Kändel gemacht werden, alda die Schlagregen am meisten hinkommen.
Nach der Grundsteinlegung verging eine geraume Zeit, ohne dass der Klosterbau in Angriff genommen wurde. Der Guardian Petrus Daubach (1655-1657) gab sich viel Mühe, den Patron zum Bau zu bewegen. Doch je mehr er flehte, desto größer wurden die Schwierigkeiten, bis von Eyschen sich schließlich 1657 entschloss, die Mauern mit dem größten Teil des Daches zu erbauen: Am 27. März 1657 schloss er mit dem Maurermeister Mathias Cousin einen Kontrakt, wonach dieser für die Arbeiten in mehreren Tranchen insgesamt 225 Reichstaler erhalten sollte. Das Bauholz wurde von zwei Brüdern für 591 Reichstaler am Oberrhein gekauft. Die Zimmerarbeiten übertrug man für 225 Reichstaler Jacob Cloeßgen aus Worringen. Am Portiunkulafest 1657 (2. August) konnte in dem Gebäude erstmals zelebriert werden. Im September kam das Gebäude unter Dach, am 10. Oktober wurde ein Kontrakt mit dem Dachdecker abgeschlossen: für jeweils 1.000 Dachziegel 2 Reichstaler und für jede Rute Schiefer 5 Gulden.
Als die Fundamente schon gelegt waren, ein Brunnen gegraben und die Mauern sämtlicher Gebäudeteile bereits in die Höhe ragten, kamen Wilhelm Westhoven und zwei weitere Bürger und legten gegen den Bau Protest ein: Das Waschhaus und der Brunnen seien zu nahe am öffentlichen Weg gebaut, und die Gemeinde habe die Baugenehmigung nur unter der Bedingung erteilt, dass zwei Tore, eins am Juddeturm, das andere an der Stadtmauer zur Mühle hin, erbaut werden, die nach Belieben geöffnet und geschlossen werden können, mit Ausnahme des Belagerungsfalls oder der Fronleichnamsprozession, wobei sie durchgängig geöffnet sein sollten. Keinesfalls sei es erlaubt, darauf zu bauen. Die Patres berichteten dies dem Patron, doch es geschah nichts weiter in der Angelegenheit.
Am 16. Mai 1658 kamen die Maurer und Arbeiter vom Bau des Klosters Bethlehem nach Zons, um die Bauarbeiten fortzusetzen, die so gut vorangingen, dass die Konventualen am 13. November des Jahres ihr bisheriges Haus verlassen und den Bezug des Klostergebäudes feiern konnten. Zu diesem Festtag waren auch der Patron Georg von Eyschen, Dr. jur. Heinrich Oeckhoven, mehrere angesehene Bürger aus Köln, der Zonser Pfarrer Placidus von Kempen und sein Vikar, der Kommissar des Amtmanns Georg de St. Georgio, der Stadtrat und mehrere Festgäste aus der Nachbarschaft zugegen. Eine feierliche Prozession zog aus der alten Kapelle in die neu eingerichtete.
Doch die Arbeiten am bzw. im Klostergebäude dauerten noch länger an: Erst gegen Ende April 1660 konnten der Bruder Reineri und zwei Gehilfen die Schreinerarbeiten abschließen. Später im Jahr besuchten der Patron und der Domherr Franz Egon von Fürstenberg-Heiligenberg das Kloster. Von Fürstenberg lobte den Neubau und seine Lage, sprach sich für die Fertigstellung des Komplexes aus, versprach bei seiner Abreise allen Schutz und gab als Almosen 4 Reichstaler.

1662 wurde mit dem Bau der Klosterkirche begonnen. Annähernd 3.000 Reichstaler waren bereits an Baukosten investiert worden, als am 18. Februar 1664, dem Todestag des Patrons, das Dach der Klosterkirche vollendet wurde. Noch Anfang 1665 war der benachbarte Klosterbau nur zur Hälfte fertig: Der Guardian Ludovicus Vinck ließ Anfang Februar die zweite Hälfte desselben beginnen. Zur Hilfe schickte der Provinzial einen in Schreinerarbeiten erfahrenen Laienbruder namens David Vinanden, so dass das Gebäude noch in der ersten Jahreshälfte 1665 komplett fertiggestellt werden konnte. Auch kümmerte sich der Guardian um die Vollendung der Klosterkirche: In den Monaten Mai und Juni fertigten der Pater Paulus Dotzenberg und David Vinanden das Brettergewölbe der Kirche. Ferner wurden der Bau gekalkt und dekoriert (Georg von Eyschen sorgte noch zu Lebzeiten für die Ausstattung mit Lampen, Leuchtern, Rauchfass, Textilien für Paramente usw.), im Turm zwei Glocken aufgehängt und derselbe mit Blei gedeckt, drei Altäre errichtet, die Kommunionbank aufgestellt und Fenster eingesetzt.
Weil Köln 1665 und 1666 von der Pest heimgesucht wurde, zogen sich die Priesterkanoniker des Domkapitels nach Zons zurück, nämlich Weihbischof Adrian von Walenburch, der Offizial Thomas von Quentel, Generalvikar Paul von Aussem, der Regens Laurentius Franken, Haas, Gihr, Heinrich von Mering und der Syndikus Dr. Heinrich Oeckhoven. Während ihres Aufenthalts wurde die Kirche völlig fertiggestellt; sie hatten sich für die Vollendung eingesetzt, um noch an der Kirchweihe teilnehmen zu können.
Am 23. Februar 1666 war die Einsegnung der Kirche nach dem Rituale Romanum, und am 4. März 1666 fand in Gegenwart der Domherren, des stellvertretenden Probstes Petrus Geilrath von Kloster Knechtsteden, aller benachbarten Pfarrer und der ganzen Einwohnerschaft die feierliche Weihe der Kirche unter Kanonendonner statt.
1682, also einige Jahre nach der Fertigstellung des Klosterkomplexes, tauschten die Patres den ursprünglichen "Marienhof" gegen ein Haus des Pfarrers in Dormagen, das den Namen "Im Hasen" trug.[10] Es ist naheliegend, dass die Brüder darin fortan eine Terminei (Sammelstelle für Almosen) unterhielten.
Name des Klosters und Patrozinium
Das Franziskanerkloster stand unter dem Patrozinium der heiligen Jungfrau Maria. In einer Urkunde des Klosters von 1696 findet sich die Bezeichnung "in Ecclesiam B(eatae) V(irginis) M(ariae) vulgo Marienhoff".[11] Der Name "Marienhof" war demnach die im Volksmund übliche Bezeichnung der Rekollekten-Niederlassung. Diese Bezeichnung war bereits 1646 vom Patron Georg von Eyschen für die erste provisorische Niederlassung festgelegt worden und wurde folglich auf das Kloster übertragen.
Ausstattung der Klosterkapellen (ab 1646 bzw. 1658) bzw. der Klosterkirche (ab 1666)
Allgemeines
Zeit seines Lebens kümmerte sich insbesondere der 1664 verstorbene Patron Georg von Eyschen um die Einrichtung der Franziskaner-Kapelle (zunächst im Haus "Marienhof" und anschließend im Klostergebäude), die mit der Fertigstellung der Kirche 1666 in diese überführt wurde, ergänzt um zwei weitere Nebenaltäre auf Kosten des mittlerweile verstorbenen Patrons. Nach Fertigstellung der Kirche sorgten insbesondere Mitglieder der städtischen Führungsschicht bzw. des Kollegiums der Zollbeamten für die weitere Ausstattung der Kirche.
Altäre und Altarbilder
In der 1646 eingerichteten Kapelle in der provisorischen Niederlassung, dem Haus "Marienhof", ließ der Patron Georg von Eyschen einen Marienaltar (Tragaltar) und wenige Tafelbilder aufstellen bzw. -hängen. Dieser Altar ist 1658 mit anderen Einrichtungsgegenständen in die neue Kapelle im erst zum Teil fertiggestellten Klosterbau überführt worden, als die Konventualen das Gebäude bezogen.
In der Klosterkirche wurden neben diesem Marienaltar als Hauptaltar zwei Nebenaltäre errichtet, die am 22. Februar 1666 auf Anordnung des verstorbenen Patrons Georg von Eyschen von Weihbischof Adrian von Walenburch geweiht wurden: ein Franziskus-Altar und ein Antoniusaltar. Am 30. Januar 1673 schenkten der Zöllner Johann Sebastian Martini und Ehefrau Katharina Brewers einen neuen Franziskulaltar, wobei es sich wahrscheinlich um ein Retabel zum bereits bestehenden Franziskusaltar handelte.[12]
Am 30. Dezember 1670 wurden auf Betreiben der Testamentsvollstrecker des im Vorjahr verstorbenen Zollschreibers Ferdinand Meyrshoffen ein neuer Marienaltar (möglicherweise ein Retabel als Ergänzung zum bestehenden Marienaltar) in der Klosterkirche errichtet und der Stifter anschließend vor diesem Altar beigesetzt (durch Umbettung innerhalb der Klosterkirche).[13] 1680 hat der "geistliche Vater" Heinrich Decker (Schöffe) den Altar bemalen und vergolden lassen.[14]
Heiligenfiguren
1660 ließ Domherr Georg von Eyschen die bereits vorhandene Muttergottes-Statue vergolden. Diese stand später im Eingangsbereich des Chorraums der Kirche, wo sich die Mitglieder der 1699 gegründeten Marienbruderschaft versammelten. Das Jesuskind erhielt 1732 eine silberne Krone.[15]

Im April 1682 stiftete der Zollbeseher Heinrich Öhring eine Statue des Antonius von Padua, die auf dem Marienaltar aufgestellt wurde. Sie erhielt 1732 eine silberne Krone. Am 15. Januar 1702 stellte man eine St. Joseph-Statue auf, die der Zoll-Beseher und Syndikus des Konvents Gerhard Wolters geschenkt hatte, am 3. Dezember 1712 folgte die Aufstellung einer Statue der heiligen Katharina von Bologna auf Konventskosten sowie die einer Statue der heiligen Barbara auf Kosten des Besehers Gerhard Wolters. 1732 wurden drei neue Statuen für die Kirche angeschafft, von denen eine die Geißelung Jesu Christi, eine die Krönung Jesu Christi und eine den heiligen Nepomuk darstellte.[16]
Das Antoniusbild und die Muttergottesstatue der Klosterkirche wurden nach der Aufhebung des Klosters 1802 verkauft; das Antoniusbild an die Pfarrkirche St. Michael in Dormagen. Die übrigen Bilder und Statuen gingen wohl größtenteils an die Zonser Pfarrkirche.
Orgel
In der Franziskanerkirche befand sich eine Orgel, deren Erbauungsjahr nicht bekannt ist. Sie ist im Zuge eines Umbaus in der Kirche (Versetzung bzw. Aufstellung mehrerer Kirchenbänke) am 7. Juli 1682 vom Lettner- in den unteren Chorraum versetzt worden. 1684 wurde sie erneut versetzt, diesmal "ex inferiori parte ecclesiae ad chorum" (aus dem unteren Teil der Kirche in den Chorraum), wofür der Meister vom Eigelstein in Köln 6 Reichstaler erhielt. Im März 1732 wurde eine grundlegende Überholung durch den Orgelbauer Stamm für 30 Reichstaler durchgeführt, desgleichen in den Monaten Juni bis Juli 1738 durch den Orgelbauer Johann Odenthal aus Dernau eine Überarbeitung und Ergänzung um ein neues Register für 55 Reichstaler. Im Frühjahr 1786 spendete der Magistrat von Zons 30 Reichstaler, hinzu kamen weitere Spenden aus der Bevölkerung, für die Errichtung einer neuen Orgel. Diese konnte im Dezember des Jahres fertiggestellt werden (erster Einsatz an Heiligabend).[17] Im August 1790 wurde diese Orgel durch den Orgelbauer Max Schauten aus Jüchen geprüft. Vom 4. April bis 13. Mai, 27. Mai bis 14. Juni und 27. September bis 14. November 1793 ist die Orgel durch den Kölner Orgelbauer Johann Georg Arnold (1738-1824) mit mehreren Gehilfen für 712 Reichstaler umgeschmolzen und grundlegend erneuert worden, wobei u.a. das Orgelwerk um drei neue Register erweitert wurde. Am 14. November des Jahres hat der Organist des Klosters, Pater Blasius, die neue Orgel getestet und für gut befunden.[18]
In der nach Aufhebung des Klosters angefertigten Inventarliste vom 3. September 1802[19] wurde die Orgel auf 80 Francs geschätzt, also mehr als die drei Kirchenaltäre zusammen (60 Francs).
Glocken
1666 wurde eine kleine Messglocke (Marienglocke) in den Kirchturm gehängt. Nachdem diese im Juni 1741 zersprang, wurde am 27. Juli des Jahres im Klostergarten eine neue Glocke gegossen. Diese ist am 30. Juli in der Klosterkirche vom Guardian Ferdinand Bürvenich erneut auf den Namen Maria geweiht worden. Paten waren die vier Zollbeamten: Hubert Wiesen, Alexander Stevert, Conrad Spelt, Heribert Endenich sowie dessen Sohn Franz Jacob Endenich (~ 28. November 1734 in Zons[20]); weibliche Paten ("Gotten"): Maria Agnes geborene Dappers (Ehefrau des Hubert Wiesen), deren Tochter Maria Catharina Wiesen, Johanna Sophia Tilmetz (Ehefrau des Alexander Stevert), deren Tochter Gertrud Stevert, Sybille Spelt (Tochter des Conrad Spelt) und Anna Maria Endenich (~ 4. April 1748 in Zons[21]; Tochter des Heribert Endenich). Die Glocke trug die Aufschrift:
- "Ave Maria gratia plena F(rater) F(erdinandus) B(ürvenich) G(uardian)",
darunter:
- "Praefecti telonii Zontini sunt mei domini" (= Die Zollbeamten von Zons sind meine Herren).
Am 31. Juli wurde die Glocke in den Turm gehängt.[22]
Bis zum Ersten Weltkrieg befand sich im Turm der Pfarrkirche St. Martinus eine kleine Glocke aus dem Jahr 1503, die im Volksmund als "Kleppglöcklein" bezeichnet wurde. Diese Glocke (Ton: cis) stammte vermutlich noch aus der Franziskanerkirche (hierzu passt, dass das Inventar der Klosterkirche von 1802 zwei Glocken aufzählt). Sie trug die Inschrift:
- "Allen luden bekannt. Ave bynych genannt. Anno Domini MVCIII."
Diese Glocke ist 1917 für Kriegszwecke im Kirchturm zerschlagen und später eingeschmolzen worden.[23]
Reliquienausstattung
1648 erhielt die Niederlassung zwei kleine Reliquienschreine aus dem Neusser Konvent. Ein Schrein enthielt Reliquien der Heiligen Udalrich, Maria Magdalena, Barbara, Margaretha, Anastasia, Apollonia, der seligen Theresia und der Heiligen Drei Könige. Im zweiten Schrein befanden sich Reliquien der Heiligen Augustinus, Hubert, Stephan, Cäcilia, Nikolaus, Christophorus, der 11.000 Jungfrauen, des Evangelisten Lukas sowie "aliquid terra sepulchrorum sanctorum innocentium". Georg von Eyschen besorgte 1660 für die 1666 fertiggestellte Klosterkirche eine Schädelreliquie (Hirnschale) des heiligen Cyriacus, die er von Kardinal Friedrich, Landgraf von Hessen-Darmstadt und römischer Legat, geschenkt bekommen hatte. Auch ließ er in dem Jahr zwei Reliquienbehälter gießen und versilbern.[24]
1774 erhielt der Guardian Pater Anno Stockem von dem Domdechant und Weihbischof Karl Aloys Graf von Königsegg-Aulendorf die Erlaubnis, eine Reliquie vom heiligen Kreuz und eine Reliquie vom Schleier der Muttergottes in der Klosterkirche öffentlich zur Verehrung auszusetzen. Der Guardian nahm diese Reliquien jedoch mit und behielt sie für sich.[25]
Weitere Einrichtungsgegenstände, Sonstiges
Der Patron Georg von Eyschen schenkte dem Konvent 1660 eine große versilberte Lampe und 8 versilberte Kerzenleuchter, Pollen und Weihrauchfass.
Am 23. Mai (Christi Himmelfahrt) 1675 wurde eine Kathedra in der Klosterkirche aufgestellt, gestiftet von dem Schultheißen und Nachgänger Matthias Nolden, dem Zöllner Johann Sebastian Martini und dem Beseher Heinrich Öhring.[26]
Am 3. April 1702 wurde vor der Kirche ein Kreuz errichtet, das der stellvertretende Beseher Daniel Speck gestiftet hatte.[27]
Anfang Juli 1703 stiftete die Witwe des Schöffen Heinrich Decker, Catharina geborene Nöten, ein Pluviale, eine Kasel und zwei Dalmatiken.[28]

Im August 1733 ließ der Guardian Maurus Sturm ein großes steinernes Kreuz mit Darstellung von Christus und Maria Magdalena vor der Franziskanerkirche errichten.[29] Nach einer deutlich jüngeren Niederschrift (1830) soll das Kreuz bei einem Floßtransport durch Worringer Flößer während einer Rhein-Eisfahrt auf den Zonser Spichern gesunken sein. Der Guardian habe es für 5 Reichstaler erworben und auf Kosten des Klosters vor der Klosterkirche aufstellen lassen.[30] Im August 1830 wurde das Kreuz von der Stadt, die das Areal im Vorjahr für das neue Rathaus mit Schule erworben hatte, der Pfarrgemeinde geschenkt und auf den Kirchplatz von St. Martinus versetzt, auf dem es noch heute steht. Ursprünglich stand es dort auf dem Standort des ehemaligen Beinhäuschens.
Digitale 3D-Rekonstruktion des Klosters um 1700






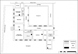
Eine aufwendige digitale 3D-Rekonstruktion des ehemaligen Franziskanerklosters wurde 2023–2025 von Daniel Hinz in Zusammenarbeit mit und im Auftrag von Thomas Schwabach erarbeitet. Ziel war die möglichst genaue Visualisierung des Klosterkomplexes in seinem Zustand um das Jahr 1700, als die maßgeblichen Bau- und Erweiterungsphasen abgeschlossen waren. Grundlage bildeten archäologische Befunde aus den Jahren 1976 bis 2021, historische Bauquellen, vor allem die im ersten Band der Klosterannalen überlieferte Baubeschreibung von 1654, sowie alte Fotografien des später als Rathaus und Schule genutzten Gebäudes.
Auf dieser Quellenbasis konnten Lage, Ausdehnung und Struktur der beiden Hauptflügel, des Kreuzgangs, der Kirche und des Klostergartens weitgehend gesichert rekonstruiert werden. Die Kirche erwies sich – entgegen früheren Annahmen – als ost-west-orientiert und unmittelbar mit dem südlich anschließenden Klostertrakt verbunden. Der quadratische Kreuzgarten mit umlaufendem Kreuzgang, das Obergeschoss mit den Zellen des Dormitoriums sowie die Einbindung der Nebengebäude, darunter Waschhaus und Klosterbrauerei von 1686, wurden quellenkritisch ergänzt und mit typologisch verwandten Franziskanerbauten des Rheinlands verglichen.
Besonderes Augenmerk galt der Einbindung der archäologischen Grabungsbefunde in die digitale Modellierung. Dabei bestätigten sich zahlreiche in der Baubeschreibung genannte Maße, etwa zu Mauerstärken, Flügelbreiten und der Anordnung des Kreuzgangs. Fehlende Partien – etwa der Kirchenchor oder Teile des Gartens – wurden auf Basis plausibler Vergleichsbeispiele und im Sinne eines "information guesswork" ergänzt, ohne den Charakter der Rekonstruktion als wissenschaftlich gestützte Annäherung zu überschreiten. Das Ergebnis ist eine virtuelle Rekonstruktion des gesamten Klosterareals, die den Bauzustand um 1700 detailgetreu veranschaulicht und erstmals eine räumlich kohärente Vorstellung des verloren gegangenen Konvents vermittelt.[31]
Video-Links:
Kurzer Video-Rundflug über das rekonstruierte Klosterareal.
Rundgang durch das rekonstruierte Kloster mit Daniel Hinz.
Klosterorganisation
Terminierbezirk
Der Terminierbezirk war der Raum, in dem die Konventsmitglieder um Almosen betteln durften. 1647 bekam die Niederlassung die Orte im kurkölnisch-jülichen Grenzgebiet östlich der Linie Gohr-Worringen/Köln-Esch bis an den Rhein für die Termingänge zugesprochen. Noch im selben Jahr kamen große rechtsrheinische Gebiete aus dem bisher zum Brühler Konvent zählenden Sprengel hinzu, und zwar von Himmelgeist und Benrath im Norden bis Hitdorf und Rheindorf im Süden, östlich ungefähr begrenzt von der Linie Hilden-Leichlingen. Zwischen 1650 und 1659 wurde der rechtsrheinische Sprengel schrittweise auf Kosten des Brühler Konvents erweitert, und zwar westlich bis auf die Linie Hönningen-Oekoven, südlich bis etwa Ossendorf-Niehl. Rechtsrheinisch war der Sprengel des Düsseldorfer Franziskanerklosters berührt, so dass sich das Provinzkapitel 1653-1659 mehrfach mit strittigen Holzterminen des Düsseldorfer Konvents im Sprengel des Zonser Konvents befassen musste.[32]
Mit der letzten Erweiterung 1659 umfasste der Terminierbezirk die Pfarreien Gohr, Nettesheim, Oekoven, Worringen, Dormagen, Esch, Hackenbroich, Nievenheim, Monheim und Richrath. Angesichts des großen Sprengels ist es sehr wahrscheinlich, dass das Kloster über regelmäßig aufgesuchte feste Unterkünfte (Termineinen) verfügte. Der Zonser Schöffe Josef Hugo berichtet in seiner Chronik über eine Unterkunft der Zonser Franziskaner in Dormagen (Haus "den Hasen genehn[t]").
Klosterämter und Mitgliederzahl
Vorsteher des Konvents war der Guardian, der vom Vikar vertreten wurde. Seit den 1670er Jahren ist der Konventsprediger (Concionator; seit 1733 häufiger unterschieden zwischen Sonntags- und Festtagspredigern) belegt. Mitte des 18. Jahrhunderts taucht der "lector moralis" bzw. "praeses casuum", also der Leiter der vorgeschriebenen wöchentlichen Moralkonferenzen, an denen alle Patres teilnehmen mussten, erstmals auf. Doch wurde diese Aufgabe häufig von Guardianen, Vikaren oder Predigern mit übernommen. In den Jahren zwischen 1684 und 1700 sind "instructores", also Erzieher der studierenden Kleriker und jungen Laienbrüder, belegt. Da die Amtsinhaber im Regelfall bereits nach wenigen Jahren in andere Niederlassungen wechselten, war die Fluktuation hoch.[33]
Der Zonser Konvent gehörte zu den kleineren Konventen der Kölnischen Rekollektenprovinz: 1647 und 1648 bestand die Gemeinschaft aus 4 Patres und 2 Laienbrüdern, 1658 sind 5 Patres und 3 Laienbrüder belegt, 1664 waren es 12 Konventualen, und bis 1667 sank die Zahl leicht auf 5 bzw. 6 Patres und 4 Laienbrüder. 1688, 1696 und 1698 umfasste der Konvent 14 Mitglieder, und die Zahl erhöhte sich bis 1744/45 auf 20 Mitglieder. Später ging die Zahl allmählich wieder bis auf 10 Mitglieder zurück (1786 und 1790: 13 Patres, 5 Laienbrüder; 1802: 12 Mitglieder, davon zwei auswärtige Ordensleute).[34]

Äußeres Erscheinungsbild der Franziskaner
Obwohl es gewisse Unterschiede je nach Zeit und Region gab, lassen sich doch gewisse Gemeinsamkeiten im äußeren Erscheinungsbild der Franziskaner-Observanten festmachen, so dass wir uns ein Bild von den Zonser Franziskanern machen können: Vorgeschrieben war die Tonsur, und sie durften keinen Bart tragen. Für die Ordenstracht (das Habit) war die Einfachheit und Geringwertigkeit des Stoffes charakteristisch. Es handelte sich um eine aschfarbene, knöchellange Tunika aus grober Wolle, die mit einem Strick (Zingulum) aus Wolle gegürtelt wurde. Der Strick wurde so gebunden, dass zwei lange Enden vor der Kutte hingen. Eines der beiden Enden wurde dreimal verknotet. Diese Knoten sollten den Träger an die drei Gelübde Armut, Keuschheit und Gehorsam erinnern. Über der Kutte war ein Schulterkragen. Typisch für die Observanten waren die Holzpantoffeln mit einer höchstens zwei Finger hohen Holzsohle mit Absatz und einem breiten Lederband darüber.
Klostervorsteher (Guardiane)
Von 1646 bis 1802 waren folgende Klostervorsteher (Guardiane) im Kloster tätig:[35]
- 1.) 1646-1650: Wilhelm Sinzig (zunächst Präses bzw. Vikar, seit 1649 Guardian)
- 2.) 1650-1652: Augustin Breuer
- 3.) 1652-1655: Tillmann Streidt
- 4.) 1655-1657: Petrus Daubach
- 5.) 1657-1659: Petrus Moldener
- 6.) 1659-1660: Josephus Rotarius
- 7.) 1660-1662: Ferdinand Bolender
- 8.) 1662-1663: Kornelius Abenden
- 9.) 1664-1667: Ludovicus Vinck
- 10.) 1667-1669: Adam Bürvenich
- 11.) 1669-1672: Andreas Koch
- 12.) 1672-1675: Hektor Friedeler
- 13.) 1675-1676: Amandus Winter
- 14.) 1676-1679: Ambrosius Greef
- 15.) 1679: Winand Jantz
- 16.) 1679-1680: Georg Laurentii
- 17.) 1681-1684: Aegidius Schellen
- 18.) 1684-1687: Heinrich Queix
- 19.) 1687-1690: Paulus Aussem
- 20.) 1690-1693: Matthias Herschel
- 21.) 1693-1695: Petrus Aussem
- 22.) 1696-1697: Wilhelm Emmerich
- 23.) 1697-1699: Franziskus von der Burg
- 24.) 1699-1702: Adrian Pollem
- 25.) 1702-1705: Wilhelm Emmerich (wie 22.)
- 26.) 1705-1708: Theodor Liefrink
- 27.) 1708-1711: Jakob Metzenich
- 28.) 1711-1714: Winand von Juden
- 29.) 1714-1718: Christoph Berchem
- 30.) 1718-1719: Franziskus Gülich
- 31.) 1719-1721: Desiderius Orth
- 32.) 1721-1722: Petrus Orth
- 33.) 1722-1723: Aemilian Kenten
- 34.) 1724: Augustin Schröder
- 35.) 1724-1727: Emmanuel Merheim
- 36.) 1727-1730: Gereon Schneid
- 37.) 1730-1731: Johann Mayer
- 38.) 1731-1732: Severin Dorn
- 39.) 1733-1734: Maurus Sturm
- 40.) 1734-1736: Matthias Zorn
- 41.) 1736-1739: Adam Bungs
- 42.) 1739-1740: Sigismund Otter
- 43.) 1740-1743: Ferdinand Bürvenich
- 44.) 1743-1746: Chrysanthus Langen
- 45.) 1746-1748: Mansuetus Löhrer
- 46.) 1748-1751: Chrysanthus Langen (wie 44.)
- 47.) 1751-1754: Engelhard Löderer
- 48.) 1754-1755: Franziskus Merheim
- 49.) 1755-1757: Konstantius Kieff
- 50.) 1757-1760: Prozessus Schillings
- 51.) 1760-1763: Theodor Langohr
- 52.) 1763-1766: Franziskus Viehoff
- 53.) 1766-1769: Anno Stockem
- 54.) 1769-1770: Anton Volz
- 55.) 1770-1772: Franziskus Mosterz
- 56.) 1772-1775: Anno Stockem (wie 53.)
- 57.) 1775-1776: Ubald Lechenich
- 58.) 1776-1778: Remaklus Siegers
- 59.) 1778-1779: Adolf Meinerzhagen
- 60.) 1779-1782: Fiakrius Blum
- 61.) 1782-1785: Foilan Deutschen
- 62.) 1785-1788: Bartholdus Raves
- 63.) 1788-1791: Heliodorus Klemens
- 64.) 1791-1794: Marius Strauch
- 65.) 1794-1798: Autbert Schlimbach
- 66.) 1798-1802: Johann Baptist Abels
Seelsorge und Katechese
Die Hauptaufgabe der Gemeinschaft war die Seelsorge in Zons sowie dem Umland im Grenzgebiet von Kurköln bzw. Jülich zwischen Neuss und Köln und in den angrenzenden rechtsrheinischen, zum Herzogtum Berg gehörenden, mehrheitlich protestantischen Gebieten (dort insbesondere, um dem Vordringen des Protestantismus entgegenzuwirken). Dies geschah vor allem durch die Aushilfe in der Pfarrseelsorge, regelmäßige Messen, Predigten, Katechese und Prozessionen. Daneben engagierten sich die Konventualen in der Betreuung von Bruderschaften.
Bereits seit 1646 versahen die Patres die sonntägliche Katechese in der Pfarrkirche. Seit 1650 bedienten sie auf Anfrage auch den Antoniusaltar in derselben.[36]
Damit der Friede und die Eintracht zwischen dem Ortspfarrer (die Pfarre war dem Benediktinerkloster Brauweiler inkorporiert) und dem Kloster bewahrt werde, wurde durch Generalvikar Paul von Aussem 1665 bezüglich der Predigt und Katechese festgelegt, dass in der Pfarrkirche die Predigt mit Hochamt um 7 Uhr beginne und um 9 Uhr der Gottesdienst in der Pfarrkirche beendigt sein solle, in der Klosterkirche um 9 Uhr Hochamt mit folgender Predigt und nach der Predigt die letzte Messe folgen sollte. Nachmittags um 1 Uhr solle von den Patres in der Pfarrkirche die Katechese gehalten werden. Zu dieser Anordnung gab der Pfarrer Heinrich Peil Anlass: Dieser gab sich viele Mühe, dass von den Franziskanerpatres in ihrer Klosterkirche keine Predigt gehalten wird, und beklagte sich beim Pater Provinzial und dem Domherrn. Beide erkannten jedoch den großen Nutzen der Predigten für die Stadt, und anstelle eines Verbots verlegten sie die Predigten auf eine günstigere Zeit, dass daraus ein noch größerer Nutzen gezogen werden konnte. Der Pater Provinzial bestätigte diese Entscheidung.
Die Franziskanerkirche war neben den kirchlichen Hochfesten besonders an den Marienfeiertagen, den Festtagen der Pfarrpatrone Martinus und Hubertus und den drei Festtagen des Franziskanerordens – Antonius von Padua, Portiunculafest und Franziskus – besonders gut besucht. An manchen dieser Festtage veranstalteten die Konventualen Prozessionen durch die Stadt oder nahmen an solchen teil. Ein vollkommener Ablass von Papst Benedikt XIII. 1725 für all diejenigen, die an den drei Festtagen des Franziskanerordens eine Kirche des Ordens im Gebet besuchten, ließ die Zahl der Kirchenbesucher spürbar steigen. Seit um 1770 sind regelmäßige Antoniusandachten belegt. Gelegentlich fanden auch Prozessionen aus der Umgebung zum Franziskanerkloster statt, wie auch solche von dort in Orte oder Konvente der Umgebung. Von 1649 bis in die 1770er wurden Prozessionen von Zons zum Kloster Bethlehem veranstaltet. Die traditionelle Zonser Kevelaer-Wallfahrt, die jeweils Anfang September veranstaltet wurde, begleiteten die Franziskaner Anfang des 18. Jahrhunderts für einige Jahre.[37]
Auf Bitten des Klosters Brauweiler unterstützten die Patres den dortigen Pfarrer u.a. durch Predigten an den Sonn- und Feiertagen. Seelsorgerisch waren die Franziskaner in ihrem Terminierbezirk, der sich bis ins überwiegend protestantische Bergische Land erstreckte, tätig. In einigen Orten versahen sie bei Erkrankungen des Pfarrklerus oder Vakanzen von Pfarreien oder Vikarien auch Tätigkeiten in der Pfarrseelsorge. So verrichteten sie beispielsweise das ganze Jahr 1655 über die Seelsorge in der Pfarre Solingen. Und 1733 wurde zwischen dem Pfarrer von Uedesheim und dem Konvent ein Vertrag über die Unterstützung bei der Pfarrseelsorge und die Übernahme von Frühmessen abgeschlossen. Im 18. Jahrhundert waren insbesondere an kirchlichen Festtagen nicht selten 8-10 Patres zur Unterstützung des Pfarrklerus auswärtig tätig.[38]
Ab den 1720er Jahren berichten die Konventsannalen regelmäßig über die seelsorgerische Tätigkeit, die mit der steigenden Mitgliederzahl des Konvents zunahm: Eine Untersuchung der Einträge von Juni 1724 bis April 1725 erbrachte, dass in dem Zeitraum neben den Predigten an allen Sonn- und Feiertagen in Zons wie auch den regelmäßigen Katechesen und Rosenkranzgebeten 309 Predigten in auswärtigen Pfarreien, 9.240 Beichten in der Konventskirche, 25.252 Beichten auswärts, 36 Taufen, 23 Begräbnisse, 45 Versehgänge, 40 Exorzismen und 3 Eheschließungen stattfanden. Im Zeitraum von August 1749 bis April 1751 sind 15.280 Kommunionen in der Konventskirche ausgeteilt worden, es gab 60 Generalbeichten, inner- und außerhalb des Konvents 33.540 Beichten, 291 Predigten, 48 Taufen, 42 Versehgänge, 6 Heiraten und 23 Beerdigungen. Noch in den 1770er Jahren waren die Zahlen vergleichbar hoch. Ein erheblicher Anstieg der inner- und außerhalb der Konventskirche stattfindenden Predigten (auf 460) lässt sich für den Zeitraum von September 1776 bis Mai 1778 feststellen. Gleichzeitig erhöhte sich die Zahl der Katechesen auf 160. In den beginnenden 1780er Jahren gab es einen deutlichen Rückgang, wobei ein Zusammenhang mit den landesherrlichen Maßnahmen (in Jülich-Berg seit Sommer 1776) gegen das Terminieren ausländischer Bettlerorden wahrscheinlich ist. In anderthalb Jahren 1785/86 wurden 3.700 Kommunionen ausgeteilt, 14 Generalbeichten abgenommen, 324 Predigten inner- und außerhalb des Konvents, 12 Taufen, 5 Krankensalbungen, 3 Heiraten und die Katechese an allen Sonn- und Feiertagen in Zons durchgeführt.[39]
Die Möglichkeiten der Seelsorge wurden seit Mitte der 1780er Jahre durch landesherrliche Maßnahmen in Kurköln und Jülich-Berg gegen geistliche Orden im Allgemeinen sowie die Bettelorden und deren Almosengänge im Speziellen deutlich eingeschränkt.[40]
Glockenweihen
Einige Male führte der Guardian im Auftrag des Weihbischofs Glockenweihen in Zons und Umgebung durch: u.a. in Baumberg, Gohr, Nettesheim, Nievenheim, Opladen, Rheinkassel, Sinnersdorf, Stürzelberg, Worringen und Zülpich.[41] Am 15. Juni 1710 benedizierte und konsekrierte der Guardian Pater Jakob Metzenich für die Zonser Pfarrkirche eine Glocke zu Ehren des heiligen Martinus.
Beisetzungen in der Franziskanerkirche
Bereits kurz nach der Weihe der Franziskanerkirche (1666) begannen die Patres mit der Beisetzung von nicht dem Konvent angehörenden Personen in der Kirche. Dies führte zu Auseinandersetzungen mit der Pfarrei. Bis Anfang der 1790er Jahre sind zahlreiche Beisetzungen, hauptsächlich von Angehörigen der städtischen Führungsschicht und der Zollbeamten-Familien, belegt:
- NN, Tochter (zwei Monate alt) des Besehers Everhard Lauten, beigesetzt am 9. September 1668 (s.u.)
- Ferdinand Meyrshoffen, Zollschreiber († 16. März 1669 Zons), beigesetzt am 17. März 1669. Am 30. Dezember 1670 wurde er innerhalb der Kirche vor den Marienaltar umgebettet.[42]
- Anna Maria Ursula Martini († 21. August 1669 Zons), Ehefrau des Zöllners Johann Sebastian Martini, beigesetzt am 22. August 1669 (s.u.)
- Everhard Lauten, Beseher († 14. Oktober 1673 Zons), beigesetzt neben Ferdinand Meyrshoffen (s.u.)
- NN, Kind des Zöllners Johann Sebastian Martini, beigesetzt am 6. April 1676[43]
- Johann Sebastian Martini, Zöllner († 30. Mai 1677 Zons), beigesetzt nördlich unter dem Seitenaltar[44]
- NN, Tochter des Zöllners Johann Sebastian Martini, beigesetzt am 4. Mai 1678 vor dem Franziskus-Altar.[45]
- Agnes geborene von Horrich, Herrin in Glimbach und Morenhoven, Gemahlin des Zonser Hauptmanns und Gouverneurs Philipp Adam von Ruber, beigesetzt am 27. Juli 1678 vor dem Hauptaltar[46]
- Heinrich Öhring, Beseher, verheiratet mit Anna Fingerhut, beigesetzt zwischen April 1682 und Anfang September 1684[47]
- Trechaton, Generalmajor der fünf kölnischen Soldaten in Zons, beigesetzt am 8. September 1684 in der Mitte der Kirche hinter dem Grab des Besehers Heinrich Öhring[48]
- Catharina Nolden geborene Clausen († 18. November 1694 in Zons), Ehefrau des Schultheißen Matthias Nolden, beigesetzt vor der Kommunionbank ("ante scamnum communicantium")[49]
- Matthias Nolden (* ca. 1608/09; † 27. Juni 1695 in Zons), Zonser Schultheiß, beigesetzt am 30. Juni 1695 nahe dem Franziskusaltar (auf der Evangelienseite links)[50]
- Jacob von Hittorff († 10. August 1700 in Zons), Zollinspektor, verheiratet mit Anna Margarethe Horn, beigesetzt in einem Grab mit der Ehefrau[51]
- Heinrich Decker († 10. Oktober 1700 in Zons), Schöffe und Bürgermeister, verheiratet mit Catharina Nöten, beigesetzt vor der Krypta der heiligen Jungfrau Maria ("ante cryptam doloroso BVM")[52]
- Anna Margarethe Horn, Ehefrau von Zollinspektor Jacob von Hittorff, beigesetzt vor dem 24. Oktober 1702 in einem Grab mit dem Ehemann[53]
- Jacob Horn († 24. Oktober 1702 in Zons), verheiratet mit Anna Catharina Lennep, beigesetzt am 24. Oktober 1702 im Grab des Ehepaars Zollinspektor Jacob von Hittorff und Anna Margarethe Horn (eine Schwester des Jacob Horn)[54]
- Catharina geborene Nöten († 31. Dezember 1704 in Zons), Witwe des Schöffen und Bürgermeisters Heinrich Decker, beigesetzt wahrscheinlich im Grab des Ehemanns (s.o.)[55]
- NN, Sohn des Ehepaars Kontrolleur Gerhard Wolters und der Maria Mentz, beigesetzt am 27. Mai 1708
- Johannes Heinrich Wolters (* 27. Mai 1709 Zons; † 6. Mai 1710 Zons), Sohn des Kontrolleurs Gerhard Wolters, beigesetzt am 6. Mai 1710 am Antoniusaltar[56]
- Wilhelm Friedrich Joseph Scholtz (7 Monate alt), Sohn eines Kommissars (lutherischen Glaubens) der Brandenburgischen Armee, beigesetzt am 20. Juni 1712 unmittelbar vor der Marienstatue[57]
- Anna Catharina Kohl, Jungfrau († 29. Januar 1716 in Zons), beigesetzt am 30. Januar 1716 nahe dem Franziskusaltar (auf der Evangelienseite links), im Grab des Matthias Nolden, dessen Erbbegräbnisrecht erloschen war[58]
- Margarethe Kohl († 29. Juli 1730 in Zons), Witwe des Friedrich Müller, beigesetzt am 29. Juli 1730 vor der Pforte des Chores ("ante januam chori")[59]
- Anna Margarethe Horn († 25. März 1739 in Zons), Ehefrau des Theodor Lennep (Genneper), beigesetzt am 25. März 1739 vor dem Franziskusaltar neben der Kommunikantenbank[60]
- Maria Mentz († 5. Januar 1740 in Zons), Ehefrau des Kontrolleurs Gerhard Wolters[61]
- Anna Catharina Lenneper († 1. Oktober 1743 in Zons), Ehefrau des Bürgermeisters Johannes Peffgens, beigesetzt am 1. Oktober 1743[62]
- Johannes Peffgens († 23. Dezember 1743 in Zons), Schöffe und Bürgermeister, Witwer der Anna Catharina Lenneper (s.o.)[63]
- Gudula geborene Ploogs (* ca. 1704; † 20. August 1793 auf dem Heckhof), Witwe von Hilarius Geyr, frühere Verwalterin auf dem Stöckemhof in der Pfarre Esch, beigesetzt am 22. August 1793 etwa in der Mitte vor der Kommunikantenbank[64]
Ein Verzeichnis in den Klosterannalen[65] listet insgesamt 71 zwischen 1649 und 1786 verstorbene Konventsmitglieder auf. Von diesen wurden mindestens 64 auf dem Klosterareal beigesetzt (ab 1670 in durchnummerierten Grabstellen), einer (1649) in der Zonser Pfarrkirche, einer (1699) wahrscheinlich in Düsseldorf und einer (1719) in der Gohrer Pfarrkirche. Bei vier Verstorbenen ist der Ort der Beisetzung nicht angegeben.
- Am 27. Mai 1708 erlitt die "geistliche Mutter" Maria Mentz, Ehefrau des Kontrolleurs Gerhard Wolters, eine Totgeburt (männlichen Geschlechts); der Fötus wurde nahe der Mauer des Refektoriums beigesetzt[66]
Konversionen (Übertritte zum katholischen Glauben)
Seit 1647 wird in den Konventsannalen regelmäßig über Konversionen berichtet, besonders aus dem rechtsrheinischen Raum. Bis 1651 handelte es sich um 16 Konvertiten. Bis in die zweite Hälfte des 18. Jahrhunderts fand durchschnittlich eine Konversion pro Jahr statt.[67]
Gründungen von Bruderschaften
1649 gründeten die Konventualen die Gürtelbruderschaft, die allein 1652/53 207 Eintritte und 1661 ca. 400 Mitglieder, darunter viele Auswärtige, zählte. Die Bruderschaft hielt monatliche Zusammenkünfte ab, woran in den 1660er Jahren regelmäßig zwischen 50 und 60 Personen teilnahmen, teils auch bis zu 100. Im Jahr 1697 gab es 124 Neueintritte, und von den 1730er bis zu den 1770er Jahren waren es jährlich zwischen 15 und 30 Neuaufnahmen. Anfang der 1780er Jahre verzeichnete die Bruderschaft einen deutlich Rückgang der Neuaufnahmen, und seit 1784/85 gab es keine Eintritte mehr.
Nachdem 1653 die Leitung der Kölnischen Franziskanerrekollektenprovinz bestimmt hatte, dass in allen Konventen eine Bruderschaft der Unbefleckten Empfängnis der allerseligsten Jungfrau zu gründen sei, erteilte der Kölner Weihbischof Georg Pauli-Stravius dem Zonser Guardian Tillmann Streidt auf dessen Bitte im Januar 1654 die Erlaubnis, die Bruderschaft auch in der Franziskanerkapelle zu errichten. Aufgrund der geringen Zahl von Interessenten geschah jedoch vorläufig nichts. Erst 1699 kam es auf Initiative des Domkapitulars Peter Bequerer zur Gründung. Die Bruderschaft zählte rasch über 830 Mitglieder. Dennoch war die Teilnehmerzahl bei den regelmäßigen Zusammenkünften meistens viel geringer als in der Gürtelbruderschaft. Auch war die Zahl der Neueintritte geringer (seit den 1730er Jahren zwischen 7 und 25).[68]
Bemühungen um höheren Schulunterricht durch die Patres
Zentrales Anliegen des Magistrats für die Zustimmung zur Niederlassung war Mitte der 1640er Jahre die Durchführung des höheren Schulunterrichts durch die Franziskaner. Entsprechend wurden die Rekollekten immer wieder auf dieses Anliegen hingewiesen. Gegen Ende des Jahres 1657 wandten sich Bürgermeister, Schöffen und Rat der Stadt Zons an Georg von Eyschen, es möge nunmehr ein Pater für die Unterrichtung der Jugend in der lateinischen Sprache bzw. bis zur dritten Klasse des Gymnasiums ernannt werden. Der Patron stimmte zwar zu, dennoch kam es nicht dazu. Immerhin war die Provinzleitung 1659 bereit, mit Elisabeth von Harhaus eine Terziarin als Lehrerin für eine zu eröffnende Mädchenschule zu stellen. Georg von Eyschen nahm sie an und übernahm deren Besoldung. Auch spätere Überlegungen des Domkapitels (1776), den Franziskanern den Lateinunterricht zu übertragen, führten nicht zum erhofften Ziel.
Sonstiges
Die Patres unterhielten hinter dem Kloster einen Garten sowie einen Baumgarten. Angesichts der geringen Klostereinnahmen (hauptsächlich aus Almosengängen und Legaten) war dies bedeutsam für ihr Auskommen. Auch erhielt das Kloster 1685 vom Amtmann die Erlaubnis, ein Brauhaus und eine besondere Krankenstube für Pestzeiten einzurichten (eine kleine Kammer für Erkrankte war wahrscheinlich bereits zuvor nach dem Klosterplan eingerichtet worden).[69] Das Brauhaus, nahe der Mauer zum Schlossbereich, wurde im Mai 1687 fertiggestellt.
Aufhebung des Klosters 1802 und weitere Entwicklung
1794 haben Ordensgeistliche geschlossener Klöster aus dem Lütticher Raum im Zonser Kloster Zuflucht gefunden.[70] Diese hatten den Ort längst wieder verlassen, als das Zonser Franziskanerkloster im Zuge der Säkularisation 1802 aufgehoben wurde.
Am 28. August 1802 erstellte der Domänenempfänger Yves aus Neuss zusammen mit dem Kommissar Everhard Dünnbier, Neusser Notar, ein Inventarverzeichnis der Franziskanerkirche. Nach diesem belief sich der gesamte Wert der Einrichtung auf recht bescheidene 291,60 Francs.[71]:
35 Messgewänder 25,- Fr. 6 Chorgewänder 6,- Fr. 6 lange Überröcke 3,- Fr. 14 Messhemden 15,- Fr. 22 Kelchtücher -,50 Fr. 37 geweihte Messtücher -,60 Fr. 7 manutergier (?) 3,- Fr. 2 Handtücher in der Sakristei 1,60 Fr. 6 Altartischtücher 3,- Fr. 7 Kommunionbanktücher 2,- Fr. 1 Tabernakelgarnitur 2,- Fr. 1 Seidenvorhang 1,- Fr. 9 kupferne Kerzenhalter 12,- Fr. 2 Weihrauchfässer, ein Weihrauchgefäß, Kupfer 6,- Fr. 1 Ziborium aus Zinn 1,50 Fr. 1 Zinnkelch 1,- Fr. 1 Monstranz 2,- Fr. 2 Paar Kännchen und 2 Zinnkannen -,70 Fr. 4 Messbücher 2,- Fr. 1 Kupfertopf 1,- Fr. 1 kupferner Weihwasserkessel 2,- Fr. 2 Kupferbürsten 3,- Fr. 2 kupferne Kerzenständer 3,- Fr. 2 Paar Gebetsverzeichnisse 50,- Fr. 1 Kupferlampe 4,- Fr. 2 Chorpulte -,40 Fr. 3 Holzaltäre 60,- Fr. 2 Chorbänke 15,- Fr. 18 Kirchenbänke 12,- Fr. 1 Kirchenstuhl 2,- Fr. 5 Statuen 3,- Fr. 1 Orgel 80,- Fr. 2 Glocken 30,- Fr. 2 Öfen 6,- Fr.
Es standen noch Rechnungen für Lebensmittellieferungen eines Gläubigers Orth bei St. Gereon in Köln offen, und anderen Gläubigern hatte der damalige Guardian aus eigener Tasche über 256,- Reichstaler 16 Sols (= 768,80 Fr.) vorgestreckt, die er nun einforderte.[72] Nach der Inventur wurde die Aufsicht über die Gegenstände dem Klostervorsteher Johann Erasmus Abels unter Strafandrohung übertragen, der sie jederzeit den Behörden zur Verfügung stellen musste.
Am 3. September 1802 wurden ein umfassendes Protokoll über die Klosterinsassen und das Klostervermögen erstellt und das Kloster aufgelöst. Zu diesem Zeitpunkt zählte die Einrichtung 12 Insassen[73]:
Name Alter Geburtsort Abels, Johann Baptist (Erasmus) 42 Kempen Castelli, Friedrich 63 Linz Wolf, Stephan 85 Koblenz Weiskirchen, Johann 78 Palmersheim May, Johann 60 Ehrang Haas, Benedikt 41 Gladbach Angersbach, Johann Jakob (Laurentius) 45 Steinbüchel Buscher, Lambert 41 Büderich Albach, Heinrich 33 Albach Jungen, Johann Wilhelm 61 Hundsbroich (bei Ahrweiler) Gabeler, Thaddäus 43 Würzburg Farber, Hermann Josef 53 Uerdingen
Der Konventsvorsteher Erasmus Abels und die Mönche mussten sich schriftlich verpflichten, das Kloster innerhalb von 10 Tagen und 7 Stunden zu verlassen und weltgeistliche Kleidung zu tragen. Am folgenden Tag (4. September) versiegelte der Friedensrichter des Kantons, Johannes Jacob Meyer, im Beisein des Sekretärs Dumoulin die Effekten des Klosters. Noch am selben Tag kontrollierte der Domänenempfänger Yves aus Neuss die Effekten, um sie anschließend erneut zu versiegeln.[74]
Bereits am 8. September 1802, also noch Tage vor Ablauf der auferlegten Frist, trugen die Klosterinsassen weltgeistliche Kleidung,[75] und am 13. des Monats verließen sie das Kloster,[76] wobei sie nur ihr eigenes Hab und Gut mitnehmen durften. Der Staat gewährte ihnen eine Rente von 500,- Francs bzw. 600,- Francs jährlich für die über 60-Jährigen. Die ehemaligen Klostergeistlichen blieben teils im Ort wohnen: Jacob Angersbach, der bereits seit 1798 als zweiter Vikar an der Pfarrkirche St. Martinus tätig war, starb am 15. Oktober 1837 im Ort. Friedrich (Ordensname Jordanus) Castelli starb in Zons am 10. März 1803,[77] Johann Wilhelm (Ordensname Bonifazius) Jungen starb am 22. August 1809 in Zons,[78] und Stephan (Ordensname Elias) Wolf starb am 17. März 1805 in Zons.[79]
Zur Zeit der Klosteraufhebung (1802) bestanden drei Mess-Stiftungen, die auf die Pfarrkirche übertragen wurden.[80]
Das Archiv des Konvents, das seit 1649 mehrfach erwähnt wird, ging nach der Auflösung des Klosters teils in das örtliche Pfarrarchiv St. Martinus (in dem noch heute die beiden jüngeren Bände der Konventsannalen, 1670-1786 und 1742-1796[81], liegen), teils in das Archiv der Kölnischen Franziskanerprovinz in Mönchengladbach, heute im Archiv der Deutschen Franziskanerordensprovinz in Paderborn (dort der 1658 angelegte erste Band der Annalen 1645-1669/70[82] und weitere Stücke)[83] Vermutlich hat der frühere "Concionator" des Konvents Jacob Angersbach, der, wie gesagt, ab 1798 zweiter Vikar der Pfarre St. Martinus war, die Annalen-Bände in das Pfarrarchiv überführt.
Das Kloster verfügte deneben über eine Bibliothek, die bereits Georg von Eyschen mit Bänden ausgestattet hatte. 1802 umfasste diese Bibliothek 1.006 Bände, von denen jedoch einige nicht mehr vollständig oder stark beschädigt waren. Über den Verbleib dieser Bücher ist nichts bekannt.[84]
Die Versteigerung der Mobilien und Immobilien des Klosters zog sich sehr lange hin, wodurch die Effekten zunehmend verwahrlosten und so an Wert verloren. Deshalb wandte sich der Domänenempfänger Yves an den Domänendirektor des Departements Robillard. Dieser reagierte am 12. März 1803 mit einem dringenden Schreiben an den Präfekten, in dem er ihn bat, dem Domänenempfänger den Verkauf der Effekten zu gestatten. Zu diesem Zeitpunkt waren bereits einzelne Gegenstände, so die beiden Öfen, verkauft worden. Einige Monate später, am 16. Dezember 1803, fand nach vorgängiger Bekanntmachung im "Postillon de la Roer" die Versteigerung in Zons statt. Diese führte Yves mit Hilfe des Polizeidieners als Ausrufer durch.[85]
Der Dormagener Notar Josef Steinberger ersteigerte das gesamte Kloster inklusive Kirche für 5.000,- Francs. Auch erwarb er die drei Altäre der Klosterkirche für 60,- Francs. Das Klostergebäude war mit Aufhebung des Klosters zunächst für 260,- Francs an den Zollbeseher Johannes Wilhelm Fischer verpachtet worden.[86] Spätestens im Herbst 1803, also noch vor der Versteigerung, bezog der wohl aus Köln stammende Apotheker Johann Jakob Hecker mit Familie das Gebäude mietsweise.[87] Das mit einem Ablass versehene Antoniusbild ging an die Pfarrkirche St. Michael in Dormagen, die Muttergottes und einige Bilder gingen an die Zonser Pfarrkirche.[88]
Teile der Orgel, insbesondere die Orgelpfeifen, sollten in den Neubau der Neusser Münsterorgel integriert werden. Daher hielten sich die in Neuss ansässigen Orgelbauer-Gebrüder Heinrich Georg, Peter Joseph und Christian Schauten in den Dezembertagen in Zons auf, um die Orgel abzubrechen.[89] Als sie am 29. Dezember morgens gegen 9 Uhr mit dem Abbau der Orgel fortfahren wollten, mussten sie im Beisein des für die verkauften Mobilien zuständigen Zonser Bürgers Andreas Kiepels feststellen, dass jemand in der Nacht Teile der Orgel (vor allem Orgelpfeifen) gestohlen hatte. Da die Tür verschlossen und keine Einbruchsspuren festzustellen waren, kamen sie zu dem Schluss, dass der Diebstahl nur mit Hilfe des Kirchenschlüssels, den der Apotheker Hecker verwahrte, hat durchgeführt werden können. Doch die angetroffene Ehefrau Hecker, mit diesem Vorwurf konfrontiert, war sehr erstaunt und wusste keine Erklärung. Auf Nachfrage erklärte der Neusser Bürgermeister Franz Joseph Jordans, er könne den Wert der gestohlenen Teile erst feststellen lassen, nachdem die restlichen, bereits verpackten Teile in Neuss eingetroffen seien. Die Orgelbauer gaben die Geschehnisse vor dem Zonser Bürgermeister (Maire) Matthias Aldenhoven zu Protokoll, das sie anschließend gemeinsam unterzeichneten. Das Dokument wurde dem Friedensrichter in Dormagen zur weiteren Veranlassung zugestellt. Das Ergebnis der Untersuchung ist nicht überliefert. Ob Teile der Orgel für die neue Münsterorgel verwendet wurden, ist fraglich, da diese erst Jahrzehnte später, 1831, fertiggestellt wurde.
Im April 1805 ließ der Eigentümer Joseph Steinberger die Klosterkirche abreißen. Hierbei kam es zu einem tödlichen Unglück: Am 17. April hatte der Zonser Schieferdecker Johannes Schüller mit den Abbrucharbeiten begonnen. Nachdem er das Dach des Turms und einen großen Teil der seitlichen Dachflächen (die nördliche komplett und die südliche teilweise) abgedeckt hatte, riss am 8. Mai die Halterung des Dachstuhls beim Runterfallen ein Stück aus dem Brett, an dem er den Haken für sein Tragseil befestigt hatte, so dass er mitsamt Haken und Seil in den Klosterhof stürzte. Dort erhielt er die letzte Ölung und Generalabsolution und starb noch an Ort und Stelle.[90] Er hinterließ eine Witwe (Anna Maria geborene Schönholz) und zwei Töchter, davon eine noch im Kindesalter.[91] Wahrscheinlich werden viele Einwohner in dem Unglück ein Gottesurteil gesehen haben.
Die Stadt erwarb das Klostergebäude mit dem umgebenden Areal 1829 von den Erben Steinberger für 961 Reichtaler und richtete im ehemaligen Kloster nach den erforderlichen Um- und Erweiterungsbauarbeiten (bis 1832) das Rathaus und die Elementarschule ein. Das Gebäude wurde 1967 abgerissen.
Aus den Klosterannalen
Während des ganzen Jahres 1657 übten die Patres die Seelsorge in Richrath aus. Im selben Jahr wurde anlässlich einer Visitation (30. April) die Prozession zum Kloster Bethlehem verboten, bis die Erlaubnis des Ordinarius vorliege.
Der Anfang des Jahres 1658 war für die Patres aufgrund einer ungewöhnlichen Kälte und des darauf folgenden schweren Hochwassers besonders hart: Um den 6. Januar setzte sich das Eis im Rhein 8 Tage lang fest, um sich anschließend zu einem Berg aufzutürmen. Darauf folgte vom 18. bis 28. Januar eine gewaltige Überschwemmung. Die Patres schlugen im ersten Stockwerk ihres baufälligen Hauses Zelte auf und wagten es kaum, Feuer anzuzünden. Auf warme Speisen mussten sie weitgehend verzichten. Mitunter erbarmte sich die Frau Kommissarin Gertrud de St. Georgio geborene Habersack und schickte etwas. Da das Volk allen religiösen Trostes entbehrte, schlugen die Patres einen Altar auf dem Lettner auf und feierten dort in gewöhnlicher Weise die heilige Messe, woran zahlreiche Gläubige teilnahmen.
Die Fronleichnamsprozession wurde traditionell an der Schlossmauer vorbei zur Mühle geführt. Dieser Weg ist mit der Klosterstiftung von Stadt und Domkapitel an das Kloster geschenkt worden. Nach dem Tod des Bürgermeisters Pütz wurde der Ratsherr Wilhelm Westhoven Nachfolger. Dieser hatte sich dem Konvent gegenüber stets feindlich gezeigt. Er verordnete 1658, dass die Prozession wieder den alten Weg über das Klosterareal einschlage. Der Guardian entgegnete, er wisse davon nichts. Er werde an den Patron schreiben und sich nach dessen Meinung richten. Man möge dieses Mal noch den Weg nehmen, den man in den letzten Jahren genommen hat. Dennoch zog die Prozession durch das erste Tor am Juddeturm vorbei, und Westhoven öffnete gewaltsam das Tor an der Mühle. Der Guardian berichtete dies dem Patron, der antwortete, es gefalle ihm, dass der Weg und das Kloster durch das heilige Sakrament gesegnet werde. Doch solle der Guardian dafür sorgen, dass der Stadtschreiber den Vorgang in das städtische Protokollbuch einfügt. Das Vorgehen Westhovens solle bestraft werden. Unter dem Guardian Tillmann Streidt (1652-1655) hatte Westhoven dies bereits vor 5 Jahren versucht und war abgewiesen worden.
Auf Bitten der Patres wurde 1659 die Prozessionen durch den Ort an den Festtagen Portiunkula (2. August), hl. Franziskus (4. Oktober) und am jeweils ersten Sonntag des Monats gestattet, bis der Umgang im Klosterareal fertiggestellt ist.
Am 25. Oktober 1661 starb in Zons die adeligen Frau Gertrud Habersack, Gemahlin des Edelherrn und Kommissars des Domkapitels Heinrich de St. Georgio, eine große Gönnerin des Klosters.
Am 2. Februar 1662 übernachtete im Kloster Anton Franz Graf von Collalto (1630-1696), Gesandter Kaiser Leopolds I. zum Kurfürsten von Brandenburg und König von England, mit noch einem anderen Grafen.
Zum Portiunkulafest 1662 (2. August) kam eine Prozession von Nettesheim, Gohr und Oekoven. Der Patron hielt das Hochamt und trug bei der Prozession das Sanctissimum, wie auch später am Franziskustag (4. Oktober). Am Portiunkulafest wurden fast 800 Kommunionen ausgeteilt.
Im Jahr 1663 besuchte der Kanoniker des Kölner Gereonsstifts, Franziskus Eich, mit einem Musikchor das Kloster. Georg von Eyschen hielt ein Hochamt.
Am 18. Februar 1664 erlitt Georg von Eyschen beim Abendessen einen Schlaganfall bzw. er erlag der Altersschwäche. Er starb nachts gegen 23 Uhr. Er war ein großer Wohltäter des Zonser Klosters. Wenn er auch die Vollendung des Klosterkomplexes nicht mehr miterleben konnte, so konnte er doch bereits die Früchte seiner Bemühungen sehen: Als er am Franziskustag 1662 das Hochamt leitete und dabei die Frömmigkeit der Bevölkerung miterleben konnte, rührte ihn dies zu Tränen. Er wurde im Kölner Dom begraben. Zu der Zeit war der Bau des Klosters zur Hälfte fertig und die Kirche im Inneren noch ganz unvollendet. In seinem Testament soll von Eyschen verordnet haben, dass durch seine Nachlassverwalter die durch den Klosterbau noch bestehenden Schulden, die sich auf ca. 500 Reichstaler beliefen, so bald wie möglich bezahlt werden sollten. Mit Rücksicht hierauf erhielt der Konvent vom Neusser Magistrat gegen Auslieferung einer neuen Obligation 125 Reichstaler, die dieser von Eyschen schuldete. Als Testamentsvollstrecker waren Adrian von Walenburch, Senior des Domkapitels und Weihbischof, und der Pfarrer von St. Johann eingesetzt. Aus Dankbarkeit verpflichtete sich die Ordensprovinz, 1.000 heilige Messen für den Verstorbenen zu lesen, wovon der Zonser Konvent 300 zu lesen hatte. Auch sollte alljährlich ein Jahrgedächtnis mit Vigilien gehalten werden. Im August wurde durch Dr. jur. utrius Thomas Quentelius, Offizial des Erzbischofs und ordentlicher Richter, Priesterkanoniker des Domstifts, das Testament des Georg von Eyschen für ungültig erklärt und das Domkapitel zum Erben aller hinterlassenen Güter, sowohl Mobilien als auch Immobilien, erklärt. Der Konvent sah sich in der Hoffnung, mit dessen Hinterlassenschaft die Kirche und das Kloster vollenden zu können, getäuscht.
Ostern 1664 halfen die Patres in Dormagen, Worringen, Hackenbroich, Esch, Weiler, Nievenheim, Knechtsteden, Gohr, Höningen, Nettesheim, Oekoven, Monheim, Rheindorf und Richrath aus. Der Abt von Knechtsteden verlangte zur Feier des heiligen Norbert, des Ordensstifters, vier Beichtväter des Konvents.
Am Portiunkulafest (2. August) 1664 wurde Predigt in der Kapelle und das Hochamt in der neuen Kirche gehalten. Sechs auswärtige Pfarrer waren hierbei anwesend.
Beim Nievenheimer Fest (Salvatorfest) 1665 halfen vier als Beichtväter, und der Guardian predigte.
1665 beichteten am Portiunkulafest (2. August) 1.000, am Franziskustag (4. Oktober) 1.200 Personen.
Anfang April 1666 trat auch in Zons die Pest aus, wodurch ein Drittel der Einwohnerschaft starb. Sie wütete bis zum Ende des Jahres. Alle Tage wurde nach der Messe die Lauretanische Litanei mit Antiphon gebetet. Portiunkula (2. August) war feierliche Prozession, an welcher die ganze Bürgerschaft mit dem Pfarrer teilnahm. Auch wurde in diesem Jahr das Fest des heiligen Rochus (16. August) zum ersten Mal mit besonderer Andacht und feierlicher Prozession durch die Felder gehalten: Diese Prozession führte zu den 7 Stationen, die kurz zuvor errichtet worden waren, wovon eine zu Ehren des heiligen Rochus gebaut war (ein kleines Heiligenhäuschen mit dessen Bild auf einer Anhöhe, die ehemals der Judenkirchhof genannt wurde).[92] Gegen Pfingsten verließen die Domherren wegen der Pest Zons und gingen nach Köln. Den Zollbeamten befahlen sie, bis 1667 mit der Zollerhebung in das benachbarte Stürzelberg zu ziehen. Für sie und das ganze Nachbardorf hielten die Patres an allen Sonn- und Feiertagen Gottesdienst mit Predigt und Katechese.
Die Patres halfen während des Jahres 1668 an Ostern, Pfingsten und Weihnachten in den benachbarten Pfarreien aus. Am Fest Mariae Lichtmess (2. Februar) nahm der Amtmann Franz Bernhard von Nassau mit brennender Kerze an der Prozession teil. Am Fest der Kirchweihe der Klosterkirche, am Sonntag Sexagesima (5. Februar),[93] bewirtete derselbe die Patres im Refektorium des Klosters auf das Freigiebigste, wozu er auch die Zollbeamten, den Gerichtsschreiber Georg Sigismund Habersack, den Burggrafen Johann Hilden, den Schultheißen Matthias Nolden, mehrere Hofleute, den Pfarrer Maurus Dünwaldt und den Vikar Heinrich Peil einlud. Nach dem Essen scheute der Vikar und Vize-Pfarrer Heinrich Peil sich nicht, in der Kirche bei dem genannten Amtmann, der den Orden begünstigte, gegen die Franziskaner zu giften, indem er, was der Bruder Theodor Koch hörte, kritisierte: Weshalb der Fürst ihnen seine Ehre erweise, dass er sie so oft zu seiner Tafel lade, da sie Bettler seien und täglich an den Türen vorbeigingen, um Brot zu betteln? Auch sie (die Pfarrgeistlichen gehörten dem Benediktinerorden an) seien anständige Männer, die der Fürst hingegen nicht zu seiner Tafel lade. Sein Sarkasmus wurde vom Amtmann übel aufgenommen.
Am Aschermittwoch (4. April) kam der Fürst mit seiner ganzen Dienerschaft in die Klosterkirche und ließ sich das Aschenkreuz geben. Karfreitag morgens 6 Uhr predigte der Guardian in der Pfarrkirche, am Nachmittag um halb zwei zog die Prozession von der Klosterkirche zur Pfarrkirche, von dort zum Kreuz vor dem Tor[94] und zu den Kapellen. Der Pater Vikar Heinrich Peil hielt fünf fromme Ermahnungen. Um Ostern halfen die Patres in der ganzen Umgegend.
Der Vikar, Pater Heinrich Peil, war bestrebt, Pfarrer von Zons zu werden, anstelle seines Konfraters Pater Maurus Dünwaldt, der vor mehreren Jahren von seinen Oberen in Brauweiler rechtmäßig zum Pfarrer gewählt worden war. Heinrich Peil eilte nach Brauweiler, wo sich damals der Generalvikar Paul von Aussem mit anderen Äbten aufhielt, und klagte gegen Maurus Dünwaldt, dass er seinen Pfarrpflichten nicht genüge, indem er den Pfarrangehörigen erlaube, zur österlichen Zeit in der Kirche der Franziskaner anstelle der Pfarrkirche zu kommunizieren. Pfarrer Dünwaldt sah sich deshalb veranlasst, seinen Küster, der zugleich Lehrer war,[95] zum Franziskanerkloster zu schicken, um den Guardian Adam Bürvenich zu fragen, welche Personen dort in der österlichen Zeit kommuniziert hätten. Der Guardian erwiderte, er kenne und nenne die Zonser Pfarrkinder nicht und könne von Dünwaldt nicht verpflichtet werden, die zur Kommunionbank Kommenden zu fragen, woher sie seien, sondern er setze voraus, dass sie dem Kirchengebot der österlichen Kommunion in der Pfarrkirche schon nachgekommen seinen. Es sei unüblich, sie fortzujagen. Überdies glaube er, die Franziskaner haben genug getan, wenn sie vor der österlichen Zeit die Pfarrangehörigen von der Kanzel aus ermahnten, die österliche Kommunion in der Pfarrkirche zu halten. Wenn die Beichtväter befragt würden, ob man dieser Pflicht nicht in der Klosterkirche nachkommen könne, hätten sie dies verneint, wofür es Zeugen gebe. Einige aber seien gekommen und hätten gesagt, sie könnten nicht in der Pfarrkirche kommunizieren, da sie ein wenig zu spät in dieselbe gekommen seien, und es sei keiner da, der ihnen die Kommunion gebe. Sie könnten aufgrund der häuslichen Pflichten nicht länger warten, und sie bäten deshalb, es möge einer der Franziskaner-Patres ihnen die heilige Kommunion geben. Er sei fast seit 50 Jahren an vielen Orten der Diözesen Mainz, Trier und Köln gewesen, und er habe nirgendwo gehört, dass dies den Klostergeistlichen von irgend einem Bischof verboten worden sei, sondern er habe überall erlebt, dass die Kommunion ausgeteilt wurde, auch in der österlichen Zeit. Dennoch hatte die Klage des Heinrich Peil bewirkt, dass sich der Generalvikar schriftlich an den Provinzial Pater Vettweis wandte. Dem Schreiben war eine Beschwerdeschrift beigefügt. Der Küster habe die Stellungnahme des Guardian so wiedergegeben, so berichtete Pfarrer Dünwaldt, dass es niemanden etwas anginge, auch nicht den General-Vikar. Daher rief der Guardian den Küster zu sich, um ihn zur Rede zu stellen. Als dieser behauptete, dass er es so vernommen habe, fuhr ihn der Guardian hart an nannte ihn einen ehrlosen Lügner.
In der Klageschrift des Generalvikars an den Pater Provinzial wurde berichtet, am Ostertag selbst habe der Guardian oder sein Vikar mehr als 50 Pfarrangehörigen die Kommunion erteilt. Der Provinzial schickte die Klageschrift dem Guardian in Zons zu. Der Guardian schickte zwei seiner Patres (den Pater Vikar und den Pater Cornelius Dünwald) in die Pfarrkirche. Pfarrer Maurus Dünwaldt wies die Gläubigen nach der Kommunion darauf hin, dass diejenigen, die entgegen den Kirchenvorschriften bei jemand anderem beichten würden, unwürdig seien. "Wer ist euer Pfarrer, den ich nicht rechtmäßig eingesetzt habe? Habe ich nicht zur Zeit der Pest mein Leben für euch eingesetzt? Sonntag wird das Evangelium vom guten Hirten sein, dann werde ich euch diesen selbst zeigen. Zweitens mögen die wissen, die nicht in dieser Kirche kommunizieren, dass sie der Kirchenstrafe verfallen, und wenn sie sterben, dass sie sich des kirchlichen Begräbnisses berauben, wenn sie nicht zu mir kommen, bei mir beichten und in dieser Kirche kommunizieren." Es sind in der Vergangenheit Einige zum Kloster gekommen, klagend, sie fänden in der Pfarrkirche niemanden, der ihnen die Kommunion geben wollte. Sie könnten nicht warten und baten daher im Kloster darum. Der Pfarrer verlange, dass alle während des Hochamts kommunizieren, da sie, wenn sie früher kommunizierten, sich dem Wein, Branntwein und Essen hingeben würden. Wenn sie aber nicht in der heiligen Messe kommunizieren könnten, so sagten sie, könnten sie nicht zur Kirche kommen, besonders die Mütter, die Kinder und keine Magd haben, die ihnen während des Hochamts das Mittagessen kochen könne.
Den Streit hat Heinrich Peil losgetreten, der ein bekannter Störenfried war, überall mit den Bürgern Streit anfing und mit dem Pfarrer Maurus Dünwaldt ständig im Streit lag. Überall störte er die alte Ordnung, was auch der Amtmann und seine Hofleute bezeugen konnten. Wenn der Abt von Brauweiler erfahren hätte, dass Heinrich Peil sich dem Kartenspiel in manchen Bürgerhäusern hingab, wäre der Vikar wahrscheinlich in das Kloster zurückberufen worden. Am 10. April kam Peil in der Frühe in das Franziskanerkloster, wo der Konventsvikar ihn mit der Anklage und den Verleumdungen des Vortages konfrontierte. Peil stellte darauf die Behauptung auf, nicht er, sondern der Pfarrer habe die Anzeige erstattet. Doch sein Bemühen, die Sache zu verdrehen, war vergeblich.
Der am 20. Juni zum Pfarrer von Dattenberg und Leubsdorf ernannte Vikar an St. Antoni Petrus Faber bat den Guardian, er möge, gemäß einer am 29. Mai vom Generalvikar in Köln erhaltenen Dispens, für den Konvent die Verpflichtung übernehmen, wöchentlich fünf Messen in der Pfarrkirche zu lesen. Hierfür sollte der Konvent 44 Reichstaler erhalten. Der Guardian nahm diese Bitte mit Erlaubnis des Provinzials an und las die Messen jeweils um 7 Uhr morgens, bis Heinrich Peil 1669 dagegen vorging.
Kurz darauf entwickelte sich zwischen den Pfarrgeistlichen und dem Konvent ein neuer Streit, als am 9. September 1668 das zwei Monate alte Kind des Zollkontrolleurs Everhard Lauten in der Klosterkirche begraben werden sollte. Pfarrer Maurus Dünwaldt und Küster Gottfried Breuer protestierten dagegen, aber der Guardian übergab denselben ein apostolisches Schreiben, wonach die Franziskaner die Erlaubnis dazu hatten. Pfarrer, Vikar und Küster nahmen nicht am Trauerzug teil, und es wurde nicht mit den Glocken der Pfarrkirche geläutet.
Am 16. März 1669 starb in Zons der Zollschreiber Ferdinand Meyrshoffen. Dessen Witwe und sein Bruder, der Kanonikus des St. Georg-Stifts in Köln Franziskus Meyrshoffen, verlangten vom Guardian dessen Beisetzung in der Klosterkirche. Mittlerweile waren Heinrich Peil die Pfarrgeschäfte übertragen worden. Somit war zu erwarten, dass es wieder Reibereien geben würde, wozu es auch kam: Die beiden Brüder des Verstorbenen, der Vater der Witwe Wilhelm Flöcker, Vize-Stadthalter, Bürgermeister und Zollvorsteher in Linz, gingen zum Essen in das Kloster, nachdem sie zuvor reichlich Speisen und Wein hingeschickt hatten. Auch die Zollbeamten sowie der Pfarrer und der Vikar nahmen teil. Letztere blieben noch lange, nachdem die anderen gegangen waren. Anderntags verlangte der Pfarrer die Kerzen, weil er als Pfarrer für sein Pfarrkind in seiner Kirche Messe halten wolle. Der Kanonikus ließ ausrichten, dass er dies nicht erwarte, weil der Verstorbene in der Klosterkirche mit allen Ehren begraben worden sei. Daraufhin ließ der Pfarrer durch den Küster eine Rechnung über 6 Reichstaler für durch ihn, den Vikar und den Küster erbrachte Leistungen überbringen. Und da der Pfarrer mit Widerstand rechnete, reichte er beim Landdechanten in Neuss und beim Generalvikar Aussem Klage gegen die Franziskaner ein. Der Guardian erhielt daraufhin mit Datum vom 12. April ein Schreiben des Generalvikars, wonach die einzelnen Archidiakonate und Christianitäten ihre besonderen Verordnungen über die Begräbnisse hätten. Wenn der Pfarrer Maurus Dünwaldt ihnen darüber hinaus etwas gestattet habe, so sei dies für Pfarrer Peil nicht verpflichtend. Darauf erwiderte Guardian Bürvenich, er habe nach den apostolischen Dekreten der heiligen Kongregation gehandelt, die er sich erlaube beizulegen. Falls sie gegen eine Vorschrift verstoßen hätten, möge man sie ermahnen, und sie würden sich künftig daran halten. Sie beschnitten den Pfarrer nicht in seinen Rechten und Stolgebühren, sie nähmen keine entsprechenden Gebühren, noch nicht einmal von dem Altaropfer, und der Pfarrer erhalte über die Taxe mehr als sein Vorgänger. Zu allen Diensten seien sie stets bereit gewesen, zur Predigt, Katechese und Abnahme der Beichte. Der Bürgermeister Matthias Nolden könne bezeugen, dass sie keine Stolgebühr nähmen. Man möge sich beim Amtmann und allen Bürgern erkundigen, wer der Störenfried sei: sie selbst oder der Pfarrer. An der Prozession am Portiunkula-Fest (2. August) nahmen der Amtmann Fürst Franz Bernhard von Nassau, der Abt von Knechtsteden und der Propst Franziskus von Grenaldo teil. Am 22. August wurde Anna Maria Ursula Martini, die Frau des Zöllners, in der Klosterkirche beigesetzt. In der Weihnachtszeit wurde in der ganzen Umgebung bis nach Rheindorf, Ramrath, Opladen und Hitdorf ausgeholfen.
Im Krieg mit Ludwig XIV. von Frankreich wurde am 1. Mai 1671 französische Kavallerie in Zons einquartiert. Dazu kamen Anfang Dezember noch Infanteristen in die Winterquartiere. Sie blieben bis zum 19. Mai 1672.
Am Portiunkula-Fest (2. August) 1671 begleitete der Kommandant von Kaiserswerth von Horst (Tuckenburg) nebst Gemahlin und Tochter die Prozession.
Am 30. Januar 1673 schenkten der Zöllner Johann Sebastian Martini und dessen Gemahlin Catharina Brewers einen Altar zu Ehren des heiligen Franziskus.[96]
In der Fastenzeit 1673 litt die Stadt viel durch die französischen Soldaten, die frisches, gebratenes Fleisch, feines Weizenbrot und Wein verlangten. Die Einwohner wurden gezwungen, für jedes Pferd Heu und einen Scheffel Hafer zu geben, verschiedene wurden misshandelt und geschlagen.
Am 14. März schwor der edle Herr Oberwachtmeister Carl Sassenburg von Steinen seinem calvinistischen Glauben ab und nahm den katholischen an, in Gegenwart des Pfarrers Heinrich Peil, seines Vikars und zweier Zeugen.
Am Palmsonntag (26. März) zog die Schwadron nachts ab, schlug außerhalb der Stadt am 27. das Lager auf und fügte dem Zöllner Johann Sebastian Martini einen großen Schaden zu, indem sie ein in dessen Garten liegendes geschmücktes und bemaltes Häuschen aufbrachen und die Bretter und Pfähle sowie die Stöcke des Weinstocks verbrannten. Die Bäume schnitten sie ab.
Als am 14. Oktober 1673 der Beseher Everhard Lauten, ein besonderer Wohltäter des Klosters, gestorben war und in der Klosterkirche neben dem Zollschreiber Ferdinand Meyrshoffen begraben werden sollte, fing Pfarrer Peil wieder Streit an und wollte sich den Privilegien des Ordens entgegenstellen und das Begräbnis selbst vornehmen, aber die Patres widersetzten sich.
Allerheiligen (1. November) empfingen 3.000 Personen die heiligen Sakramente in der Franziskanerkirche, weil die Bewohner umliegender Dörfer wegen des Krieges nach Zons geflohen waren. Die Hubertus-Reliquien sind zur Sicherheit nach Köln gebracht worden.
Am 19. November starb im Konvent der Prämonstratenser-Kanoniker von Knechtsteden Wilhelm Kerpen, früher Pfarrer in Hünshoven. Am Begräbnis auf dem Klosterareal nahmen der Pater Provisor Hundt, Pater Cellarius Nicolaus Brieskens, Pater Theodor Winter, der Pfarrverwalter von Nievenheim, und sämtliche Kanoniker von Knechtsteden teil.
Seit August 1674 erwähnen die Annalen den Zonser Vikar Rudolf Westhoven. Der Streit mit Pfarrer Peil im Zusammenhang mit den Begräbnissen dauert fort.
Nachdem sie bereits einige Schäden angerichtet hatten, steckten die Holländer am 10. Dezember 1674 viele Häuser und sogar ganze Dörfer in Brand und erpressten ungeheure Geldsummen. Der Griesberg wurde ganz verarmt. Schließlich verließen sie am 17. Rheinkassel und kamen nach Delhoven, Hackenbroich und Stürzelberg. Zons blieb verschont.
Am 17. April 1675 fielen die Holländer in die Pfarre Nettesheim ein, schleppten zwei Hofbesitzer gefangen fort und nahmen Pferde, Schweine und Kühe mit. Die Mönche von Knechtsteden flohen. Von diesen fand einer Aufnahme im Zonser Konvent, drei andere nahm Matthias Nolden bei sich auf. Nach vier Tagen wurden sie vom Abt nach Köln gerufen. Auf Bitten des Prälaten wurde am selben Sonntag Pater Ambrosius Greef, der Vikar des Zonser Konvents, zur Abtei nach Knechtsteden geschickt, damit er dort die Messe lese und sich um die verlassenen Güter sorge, dass sie nicht von den Bauern geplündert würden. Er solle ferner den Soldaten beistehen und das Nötige geben. Die Soldaten zerbrachen den Schlagbaum und stürmten auf die Abtei zu. Als sie schon ungefähr am Tor angekommen waren, wurden sie vom Rittmeister zurückgerufen, kamen also nicht bis zur Abtei und verlangten nichts. Der Pater Cellarius war mit zwei Kelchen durch den Stommeler Bruch geflohen, der Pater Vikar kehrte am Freitag nach Zons zurück, und der Pater Provisor Johannes Hundt zahlte dem Konvent zum Dank ein Almosen von 6 Reichstalern.
Auf Befehl des Domkapitels wurde das Feldtor Anfang Mai geschlossen.
Um diese Zeit setzten lüneburgische und braunschweigische Hilfstruppen in Mülheim über den Rhein und plünderten den Griesberg und andere benachbarte Orte. Skrupellos brachen sie in die Kirchen ein und plünderten sie. Das Landvolk, das ihre Wut und Unmenschlichkeit nicht aushalten konnte, floh mit dem Vieh und dem beweglichen Besitztum in die Festung Zons.
Am 4. Oktober, dem Fest des heiligen Franziskus, kamen wieder lüneburgische Truppen nach Zons, die in der Umgebung lagerten und dort fünf Tage blieben.
Am 9. April 1677 gelang es lüneburgischen Truppen durch eine Kriegslist, die kaiserlichen Truppen aus der Stadt zu vertreiben, und blieben bis zum 26. Juni in Zons.
Am 30. Mai 1677 starb der Zöllner Johann Sebastian Martini, der seit der Gründung des Klosters dessen Wohltäter gewesen war. Er wurde in der Klosterkirche nördlich unter dem Seitenaltar begraben.
Am 27. Juli 1678 wurde Agnes geborene von Horrich, Herrin in Glimbach und Mohrenhoven, die Gemahlin des Zonser Hauptmanns und Gouverneurs Philipp Adam von Ruber, in der Klosterkirche vor dem Hauptaltar begraben. Pfarrer Heinrich Peil hatte erneut vergeblich gegen die Beisetzung protestiert.
Am Abend des 17. September 1678 gerieten zwei angetrunkene Soldaten in Streit, wobei der eine den anderen im Duell niederstreckte. Im Glauben, der Gegner sei tot, floh der Täter zur Pforte des Franziskanerklosters. Aber noch ehe ihm geöffnet wurde, wurde er ergriffen und zur Wache geführt. Die Franziskaner beschwerten sich daraufhin über diese Verletzung des Asylrechts und wiesen darauf hin, dass die Kirche hiergegen Verstoßenden mit der Exkommunikation drohe, und verlangten, der Gefangene solle wieder in das Kloster zurück geführt werden, was schließlich auch geschah.
Am 5. Januar 1679 nahmen die Franzosen Neuss mit Gewalt ein. Die Bürger verteidigten sich wacker, die dort stationierten Soldaten aber taten nichts als Wein, Bier und Branntwein trinken. Nachdem die Bürger die Soldaten dreimal tapfer zurückgeschlagen hatten, ließen sie die Franzosen herein, die, durch den Widerstand verbittert, furchtbar in der Stadt wüteten und die ganze Nacht hindurch bis zum Morgen alles niedermetzelten. Dann brachen sie am folgenden Tag auf, um mit dem ganzen Heer und den Geschützen Zons zu belagern. Dreimal wurde die Stadt durch einen Trompeter aufgefordert, zu erklären, ob sie sich in Gnade ergeben oder verteidigen wolle. So war alles in Not, die Bürger aber dachten an das Sprichwort "Glücklich, den anderer Gefahren vorsichtig gemacht haben". Der ganze Stadtrat beriet mehrfach, dann rief man den Guardian Pater Winand Jantz herbei und fragte, was er rate und ob er für sie verhandeln wolle, denn in der Stadt war kaum einer, der Französisch sprechen konnte. Endlich kam man zum Entschluss, sich zu unterwerfen und auf Gnade zu ergeben, weil man keine Hilfe sah und nicht die Kraft hatte, einem so großen königlichen Herrn Widerstand zu leisten. Zur Zeit des Hessischen Krieges (1646) hatten die Einwohner sich unter Führung des Barons von Goltstein verteidigt wie die Trojaner. Auch war kaum Hoffnung auf Hilfe. Der Kommandant von Zons aber, Philipp Adam von Ruber, Herr von Glimbach und Morenhoven, wollte sich mit einer Schar von weniger als 80 Soldaten verteidigen, und es waren weniger als 100 Bürger. Am Morgen war zwischen 9 und 10 Uhr ein starker Nebel, und es schien, als ob die Belagerer aus Höhlen hervorkröchen. Als der Nebel verschwand, erschienen ihrer viele Tausende. Da drängten die Bürger den Guardian, er möge, um die Stadt zu erhalten, hinaus gehen und mit ihnen friedlich übereinkommen, sie wollten sich auf Gnade ergeben. Als unterdessen der Guardian mit dem Stadtschreiber Reiner Olligschläger und dem Ratsherrn Mathias Stamm draußen waren und ihnen entgegen gingen, um die Unterhandlung mit dem Anführer de Surdi und General François de Calvo aufzunehmen, traf ein Bote mit einem Brief des Domkapitels ein, worin dieses Hilfe versprach und zur Verteidigung ermunterte. Der Kommandant von Ruber wollte seine Pflicht erfüllen und sich als Held zeigen und verschloss die Tore, während die Franzosen draußen standen und Einlass erwarteten. Als der Zonser Kommandant den Tumult im Volk sah und merkte, dass sich die Bürger nicht verteidigen wollten, zog er sich mit seiner Schar auf die Burg zurück. Nun entstand ein noch größerer Aufruhr, sowohl innerhalb als auch außerhalb der Mauern. Draußen herrschten die Franzosen, drinnen die Weiber, die ihre Männer schützen und bewachen wollten. Sie hielten Rat und versprachen, lieber das französische Joch auf sich zu nehmen als mit dem Schwert umzukommen und verbrannt zu werden. Die Bürger, die ihr Versprechen und Übereinkommen halten wollten, konnten die Franzosen nicht herein lassen, weil der Kommandant die Schlüssel mit auf die Burg genommen hatte. Da entstand ein großer Tumult im Volk, Bürger liefen zusammen, auch die Frauen liefen zusammen und wollten die Tore gewaltsam aufbrechen. Eine von ihnen, kühner als die anderen, bewies sich als Heldin, nahm einen großen Schmiedehammer und zerbrach die Schlösser des Tores. Während sich dies in der Bürgerschaft abspielte, fingen auch die Anführer der Franzosen draußen an, unruhig zu werden. Sie fragten, warum ihnen das Tor der Stadt verschlossen werde, ob man Spott mit ihnen treiben wolle. Wenn man ihnen die Stadttore nicht augenblicklich öffnete, würden sie sogleich jene zwei (Reiner Olligschläger und Mathias Stamm) im Baumgarten des Schultheißen Matthias Nolden aufhängen, was sehr wahrscheinlich geschehen wäre. Als der Generalfeldmarschall Sourdis, der General Calvo sowie Saint Louis dies in großer Verbitterung bereits befohlen hatten, wurden die Stadttore durch die Weiber geöffnet und die Franzosen herein gelassen, so dass die beiden verschont blieben. Die französischen Anführer verboten ihren Soldaten das Plündern und schrieben den Zonser Bürgern vor, ihre Häuser zu verschließen. So würden sie sicher sein. Somit waren die Fremden im Besitz der Stadt, aber nicht der Burg. Deshalb wurde der schon so oft herbeigerufene Guardian ersucht, im Namen der gesamten Generalität mitzuteilen, wenn auch nur ein Schuss fiele, würden sie keinen Kompromiss annehmen, der Kommandant selbst werde unter dem Tor aufgehängt, und alle Soldaten würden getötet werden. Am ersten Tor teilte der Guardian dies dem Kommandanten mit. Dieser war aber noch willens, sich zu verteidigen, und fragte seine Soldaten, ob sie bereit wären, sich trotz der Tatsache, dass die Bürger bereits abgefallen waren, bis zum letzten Blutstropfen zu verteidigen. Der größte Teil der Soldaten antwortete hierauf, es sei unmöglich, einem so großen Heer Widerstand zu leisten. Und sie ergaben sich und übergaben die Burg unter Bedingungen, die die Franzosen später jedoch nicht einhielten. Aus dem Kloster erhielten die Franzosen über 200 Malter Weizen und Hafer sowie Fleisch. Von den armen Einwohnern erpressten sie 40-50.000 Reichstaler. Da mehr verlangt wurde als vorhanden war, mussten dieselben dazu noch Misshandlungen erleiden. Die Bürger hatten ihre Habe ins Kloster gebracht. Mit ganzen Schwadronen drangen die Soldaten in das Kloster, um Getreide wegzuschleppen. Die Bürgerschaft war so niedergeschlagen, dass im ganzen Februar und März bis zur Fastenzeit kaum noch einer die heilige Messe hörte.
Am 18. Mai zogen die Franzosen ab, ließen aber eine Kompanie Fußsoldaten zurück, die am 28. Mai abmarschierte. Dann kamen 500 Fußsoldaten von der königlichen Legion, die alles für Geld kauften und sehr elend lebten. Aber am Ende, als bekannt wurde, dass sie abziehen würden, haben sie alles zerstört, zerbrochen und nichts Gutes zurückgelassen. Am Morgen des 15. Juni zogen gegen 600 Franzosen ab, 50 blieben, am 18. kamen 600 Mann Kavallerie, die am Rhein lagerten.
Am 6. August zogen die Franzosen wieder aus der Stadt und ließen sich außerhalb der Stadtmauern nieder, am 11. zogen 200 Mann Reiter aus der Stadt ab, und kurz darauf traten 700 Mann Infanterie an ihre Stelle.
Das Fest des heiligen Ludwig, König von Frankreich, wurde am 22. August feierlich begangen, und auf Anordnung des Kommandanten erhielt die Bürgerschaft eine doppelte Portion Wein, während die Soldaten außerhalb der Stadt Bier erhielten. Am 5. September zogen sieben Kompanien Franzosen ab.
Am Tage des heiligen Franziskus (4. Oktober) hielten Pfarrer Peil und die Vikare Servatius Bardenheuer und Rudolf Westhoven in der Klosterkirche Hochamt mit Predigt. Die Kanoniker von Knechtsteden konnten nicht kommen, schickten aber einen Dukaten als Almosen.
Am 30. November verließen die Franzosen die Stadt. Für alle Last und Arbeit im Kloster hatten sie nicht das geringste Almosen gegeben. Der Chronist schließt seinen Eintrag mit: "Gott sei Dank, dass wir endlich gänzlich von diesem Franzosen-Joch befreit sind!"
An Gründonnerstag 1680 (18. April) wurde zum ersten Mal feierlich und in Gegenwart der Zollbeamten die Fußwaschung gehalten. Danach verteilten der Schultheiß Matthias Nolden und der Beseher Heinrich Öhring sowie der "geistlicher Vater" Schöffe Heinrich Decker im Konvent Brot und Wein, bevor die Patres zur Aushilfe in die Umgebung zogen.
Der Pfarrer von Dormagen hatte seinen Pfarrangehörigen von der Kanzel herab verboten, bei irgend jemand anderem als ihm selbst zu beichten. Er wurde daraufhin beim apostolischen Nuntius in Köln verklagt, musste daraufhin diese Anordnung zurücknehmen und den Einwohnern gestatten, auch weiterhin zu den Patres in Zons zu gehen.
An der Prozession anlässlich des Portiunkulafestes (2. August) 1681 nahmen der Fürst und Jungherzog von Holstein und mehrere Barone und Adelige teil. Am Fest des heiligen Hubertus (3. November) gingen in der Klosterkirche 500 und in der Pfarrkirche ebenfalls 500 Personen zur Kommunion.
1684: Nachdem der Fürst Wilhelm von Fürstenberg, Bischof von Straßburg, bereits am 4. August des Vorjahres in Zons gewesen war, weilte er auch in diesem Jahr mit vielen Soldaten, dem Fürsten von Mosbach, französischen Gesandten und anderen großen Herren in der Stadt. Am Fest Maria Himmelfahrt (15. August) und den folgenden zwei Tagen hatten zwölf Franziskanerpatres vollauf zu tun, den Soldaten, die sich zum Abzug vorbereiteten, die Beichte abzunehmen. Graf von Fürstenberg hatte ein Heer von 4.000 Mann unter dem Oberbefehl des französischen Generalmarschalls Choiseul und ein Heer von gleicher Zahl Münsterländer unter dem Oberbefehl des Generals Schwartz in der Nähe von Zons das Lager beziehen lassen. Sie blieben dort sechs Wochen. Die höheren Offiziere wohnten zur großen Bedrückung der Einwohner in Zons. Die Franziskanerpatres versahen den Dienst der Feldgeistlichen und lasen täglich Messe im Lager, predigten, nahmen die Beichte ab und waren so Tag und Nacht tätig. Auf Bitten des Grafen von Fürstenberg hielten sie das Abendgebet mit den Soldaten und standen auch den Kranken bei. Außer sechs Patres, die schon tätig waren, wurde noch ein Pater aus dem Lechenicher Konvent, Pater Heinrich Merkur, und ein Laienbruder und Koch, Walter Schneider, ersucht, im Lazarett, das in Nievenheim errichtet werden sollte, um Leib und Seele besorgt zu sein. Bis zum 16. August legten sie diesen Dienst ab, dann wurden die Kranken aus dem Lazarett in Nievenheim teils ins Lager, teils ins Lazarett nach Neuss gebracht, und am 17. war Aufbruch nach Lüttich. Pater Heinrich Merkur, der genannte Bruder Walter Schneider und noch sechs andere Patres unter der Führung des Zonser Concionators Pater Christophorus Maessen zogen mit. Nach einer Tagreise aber kehrten der Pater Jakobus Huber und Bruder Walter Schneider zurück, Letzterer, weil ihm kein Unterhalt gegeben wurde, der andere auf Befehl seines Oberen aufgrund des Mangels an Priestern im Zonser Kloster. Ihnen war vom Grafen und Bischof von Fürstenberg alles Nötige versprochen worden, der selbst fünf Tage vor den Soldaten aufgebrochen war, und dann wollte sich keiner um die Patres kümmern. Da nahmen sich einige Generäle und Offiziere ihrer bis nach Lüttich an, wo sie wohlbehalten ankamen. Nach einer Reise von neun Tagen nahmen sie die Stadt Lüttich ohne Blutverlust ein. Die Patres kamen erst am Tag vor Weihnachten, auf Bitten des Guardians vom Fürsten beurlaubt, zurück.
Am 15. Mai 1685 kam der Amtmann Fürst Franz Bernhard von Nassau nach langer Abwesenheit wieder nach Zons und blieb bis zum 26. des Monats. Täglich mussten zwei Patres bei ihm speisen. Er gab ihnen die schriftliche Erlaubnis, ein Brauhaus und ein Krankenhaus für die Zeit der Pest im Garten nahe bei der Stadtmauer zu errichten.
Die Patres Prediger Christophorus Maessen und Winand Quodbach kamen am 23. Mai zurück zum Konvent, nachdem sie neun Monate mit größten Anstrengungen ununterbrochen im Heer des Grafen von Fürstenberg in Lüttich gearbeitet hatten (sie haben in der Zeit auch 170 Lutheraner und Calvinisten bekehrt). Trotzdem mussten sie bereits am 25. wieder fort, um den Kurfürsten und Erzbischof von Köln nach Ungarn zu begleiten.
Im September reichten die Patres im Rat und Schöffenkollegium der Stadt eine Bittschrift ein, dass ihnen ein Platz zur Errichtung eines Ziegelofens zugewiesen werde. Mit den Ziegeln sollte das genannte Brauhaus errichtet werden. Sie erhielten aber auf Veranlassung des Ratsherrn Stephan Metzmacher, bei dem sie bisher hatten brauen lassen, keine Antwort. So ließen die Patres fünf Mund Ziegelsteine (die Anzahl der Steine wurde nach der Zahl der Schürlöcher im Meiler angegeben) in Dormagen brennen. Jeder Mund kostete 10 ½ Reichstaler. Gleich wurden 30.000 Stück Mauerziegel herbeigeschafft, die ausreichten. Der Amtmann ging für gewöhnlich durch eine Pforte aus dem Schlossareal in den Klostergarten. Er ließ diese Pforte auf eigene Kosten schließen, da sie zum Bau des Brauhauses nötig war, und eine neue nahe bei der Küche errichten. Dem Maurermeister wurden pro Rute sechs Kölner Gulden und das tägliche Mittagessen gegeben. Am 13. August war Baubeginn, und in 12 Tagen war das Mauerwerk fertig. Der Zimmermeister übernahm für 24 Reichstaler alle Holzarbeiten, inklusive einer Wendeltreppe. Am 6. Mai des folgenden Jahres (1687) wurde erstmals gebraut.
Vom 2. Pfingsttag 1687 an wurde auf Anordnung des Weihbischofs an allen Sonn- und Feiertagen von den Franziskanern Messe mit Predigt gehalten. Sie erhielten dafür 28 Reichstaler.
Am 6. Juni war der Amtmann in Zons.
Am 9. Mai 1688 starb der Zonser Burggraf Johann Westhoven.
Im August waren die Franzosen wieder da, wie auch im September.
Am 7. Mai 1690 kamen brandenburgische Hilfstruppen, die die Landleute arg bedrängten.
Das selbst gebraute Bier scheint gut geschmeckt zu haben. Bei der am 13. Mai 1690 durch den Provinzial unvermutet stattgefundenen Visitation wurde das geheime Trinken in der Küche oder an anderen Orten als unvereinbar mit den Klosterregeln auf das Strengste verboten.
Der Pfarrer von Nievenheim schickte den Patres zum Dank für die Aushilfe 14 Pfund Wachs.
Vor dem Fronleichnamsfest (25. Mai) kamen von Neuss und anderen Orten drei Kompanien brandenburgische Hilfstruppen nach Zons, insgesamt um die 600 Mann, überwiegend Lutheraner und Calvinisten. Sie waren gut bewaffnet und sehr geübt. Am 16. Juli zog die brandenburgische Besatzung ab, darunter viele aus Frankreich geflüchtete Hugenotten. Sie hatten alles Gras und Futter von den Feldern und Äckern der Landleute genommen.
Anfang November kamen wieder 300 brandenburgische Soldaten nach Zons, um dort zu überwintern. Sie gingen aber am 21. des Monats nach Uerdingen in die Winterquartiere. In derselben Woche kamen 200 andere.
Am 18. Dezember war ein Erdbeben in Zons und Umgegend.
In der Woche nach Ostern (29. April) 1691 kamen die brandenburgischen Truppen wieder von ihrem erfolglosen Zug gegen die Franzosen aus Flandern zurück, der Übermacht der 80.000 Mann zählenden Franzosen weichend. Am 25. Mai zogen sie wieder ab.
Am 13. Januar 1692 begannen die Patres, in Stürzelberg Gottesdienst zu halten.
Am 5. Februar war der Rhein zugefroren, so dass man hinüber gehen konnte.
Am 5. März 1693 fiel Pater Winandus Quodbach vom Glauben ab und ging zu den Calvinisten über.
Am 22. November 1694 verweilte noch der brandenburgische General Dewitz mit mehreren Offizieren auf Schloss Friedestrom, wie auch noch im Januar des folgenden Jahres (1695).
Am 30. Juni 1695 starb ein großer Wohltäter des Konvents, der Schultheiß Matthias Nolden, im Alter von 85 Jahren.
Am Franziskusfest (4. Oktober) waren die Äbte von Brauweiler und Altenberg anwesend. Die Katechese wurde von den Patres nicht mehr in der Pfarrkirche, sondern in der Klosterkirche gehalten.
Im Oktober starb der Amtmann von Zons, Fürst von Nassau. Sein Nachfolger wurde der Dompropst Fürst Christian August von Sachsen. Am 24. Oktober kam er von Köln zu Schiff in Begleitung mehrerer Herren, nämlich des Fürsten von Hessen, des Grafen von Salm, der Domherren von Geyr und Bequerer. Am Rhein empfingen der Pfarrer Beda Cleven mit seinen Vikaren, die Franziskanerpatres und –brüder mit Kreuz, die Zollbeamten, der Bürgermeister mit dem Rat und den Schöffen sowie die bewaffneten Bürger von Zons, Stürzelberg und Horrem den ehrenwerten Herrn. Sobald der Fürst aus dem Schiff ausgestiegen war, fing der Pfarrchor das "Te Deum Laudamus" abwechselnd mit den Franziskanerpatres an zu singen. In Prozession zog man mit dem Amtmann zur Pfarrkirche, wo mit dem Sanctissimum dreimal der Segen gegeben wurde. Anschließend begab sich der Fürst mit seiner Begleitung auf das Schloss. Ihnen folgten der Schultheiß Georg Matthias Nolden mit den Schöffen und die Bürger mit ihren Waffen, um ihm dort den Treueeid zu schwören. Den ganzen Tag über wurde geböllert, die Bürger knallten mit den Büchsen, alle wurden vom Fürsten mit Essen und Trinken freigiebigst bewirtet. Am folgenden Tag ging der Fürst mit seiner gesamten Begleitung vom Schloss aus durch den Garten in die Klosterkirche, wo er andächtig der heiligen Messe beiwohnte. Anschließend erhielt der Guardian auf dem Schloss vom Fürsten neben einem Almosen das Versprechen des persönlichen Schutzes für das Kloster.
Am 30. Januar 1696 kam der Amtmann Dompropst Fürst von Sachsen mit zwei Grafen von Manderscheid nach Zons, empfing den Guardian huldvoll und gewährte ihm auf dem Schloss einen Platz an seinem Tisch.
Am 18. Juni 1697 lagerten in den Wiesen bei Dormagen 2.000 neuburgische Soldaten. Am selben Tag kamen dort der Kurfürst von Köln und der Kurfürst von Pfalz-Neuburg an. Der Pfälzer bewirtete den Kölner unter einem sehr schönen Zelt. An der Tafel war auch die pfälzische Kurfürstin mit der Prinzessin von Sachsen-Lauenburg, der Braut des Großherzogs der Toskana. Die Zonser Franziskaner erhielten das übrig Gebliebene des Gastmahls an Wein und Speisen.
Am Fest Verkündigung des Herrn (25. März) 1699 wurde die Bruderschaft von der unbefleckten Empfängnis Maria gegründet. Den Schutz übernahm der Domherr von Bequerer. Sogleich ließen sich 300 Personen aufnehmen, viele mussten noch zurückgewiesen werden.
Am 2. Juni 1701 gegen 11 Uhr nachts kam der Kölner Kurfürst Joseph Clemens mit seiner Leibwache und einigen anderen Soldaten an das Zonser Stadttor, und da die Bürger ihm das Tor nicht öffnen wollten, brachen die Soldaten dieses auf. Der Kurfürst übernachtete in der Stadt. Auf dem Schloss hielten sich zwölf Soldaten des Domkapitels auf. Da sie in dieser Nacht das Schloss nicht übergeben wollten, wurden zehn von ihnen morgens aus dem Schloss geholt und zu Schiff nach Kaiserswerth (ins Stockhaus) gebracht, wohin auch der Kurfürst mit seinem Gefolge aufbrach, nachdem er am 3. Juni morgens die heilige Messe gehört und dem Franziskaner-Konvent als Almosen sechs rheinische Gulden hinterlassen hatte.
Am 12. Juni 1702 um 1 Uhr nachts stiegen holländische Soldaten mit einer Leiter über die Mauer und nahmen die Stadt in Besitz. Auf dem Schloss aber waren französische Soldaten, die sich behaupteten. Anstelle einer roten Fahne hingen sie ein rotes Kleid auf der Höhe des inneren Turmes (Weißer Turm) auf. Ein holländischer Soldat und ein französischer wurden erschossen.
Am 18. Juni morgens um 4 Uhr verließen die Franzosen das Schloss durch die hintere Tür in Richtung Osten, und sogleich wurde dieses von einem domkapitularischen Leutnant mit 10 Mann in Besitz genommen. Als aber am folgenden Tag eine hannoversche Kohorte ankam und die Leitern an das Schloss ansetzte, ließ der domkapitularische Leutnant sie herein, da er kein Pulver oder andere Kriegsmittel besaß.
Am 19. September 1704 wurden sechs domkapitularische Soldaten zum Galgen geführt.
Vom 6. bis 23. Januar 1709 herrschte eine bittere Kälte, so dass Tiere erfroren, auf den Feldern die Frucht befror, wie auch das Bier in den Kellern, so dass in ganz Zons keines zu haben war. Danach kam ein großes Hochwasser, so dass große Not herrschte. Viele flohen mit ihrem Vieh in benachbarte Dörfer. Die Not dauerte bis zum 13. Februar.
Am 6. Juli morgens um halb 4 betraten französische Soldaten durch eine Kriegslist die Stadt, als der Leutnant von Brunwitz in Neuss war. Drei der Besatzungssoldaten wurden getötet, 21 gefangen nach Luxemburg geführt.
Am 29. September hielt der Kommandant der Stadt mit 23 Soldaten seine Andacht.
Am 15. Juni 1710 benedizierte und konsekrierte der Guardian Pater Jakob Metzenich für die Zonser Pfarrkirche eine Glocke zu Ehren des heiligen Martinus.
Am 7. Juni 1713 lagerte nahe bei der Stadt Zons ein Heer von ca. 14.000 lüneburgischen Soldaten. Der adelige Herr von Mirbach bewirtete am 13. Juni die Franziskanerpatres im Speisesaal.
Im Januar 1716 stand der Rhein wieder im Eis.
Das Salvatorfest in Nievenheim zählte 1718 über 17.000 Kommunikanten. Aus dem Zonser Kloster waren acht Beichtväter dort, wie auch zwei aus dem Neusser Konvent.
Am 20. März 1722 wurde der Bau eines steinernen Tores zwischen dem Juddeturm und der Franziskanerkirche auf Konventskosten begonnen.
Am 10. September 1725 kam der neue Amtmann von Zons Graf Maximilian Philipp von Manderscheid, Domherr in Köln, mit seinen beiden Neffen, den Grafen von Hohenzollern, in einem sechsspännigen Wagen von Köln. Am Feldtor wurde er in derselben Weise empfangen wie sein Vorgänger. Am folgenden Tag gegen 3 Uhr reiste er zurück nach Köln.
Am 6. April 1726 benedizierte der Guardian eine Glocke für die Kapelle in Stürzelberg.
Der Zonser Amtmann Graf Maximilian Philipp von Manderscheid begleitete in diesem Jahr die Zonser Fronleichnamsprozession (20. Juni).
Im September 1729 war der Domdekan Graf von Blankenheim 14 Tage lang in Zons, schenkte dem Konvent zwei Goldpistolen (Währung) und kehrte bald zurück, um als Amtmann eingeführt zu werden. Er hatte sich täglich um 11 Uhr von einem Pater die heilige Messe lesen lassen.
Am 30. April 1730 war der Amtmann Graf von Blankenheim mit dem Kölner Kurfürsten Clemens August zur Jagd in Zons und blieb dort einige Tage.
Im Mai 1731 war Kurfürst Clemens August auf Schloss Neuerburg. Zwei Patres lasen ihm dort die heilige Messe. Sie erhielten auf Bitten sechs Karren Holz und ein Geldalmosen.
Nachdem der neue Amtmann Graf Johann von Fugger schon Anfang August 1731 in Zons anwesend gewesen war, erhielt er am 7. Oktober, einem Sonntag, seinen höchst feierlichen Aufzug in die Stadt. Er wurde begleitet von Domdechant Graf Ferdinand von Hohenzollern und dem Priesterdomherrn Heinrich Friedrich von Mehring. Vor dem Feldtor wurde er mit Musik und von den bewaffneten Bürgern unter Kanonendonner empfangen. Durch den Burggrafen Jacobus Mercken eingeladen, erschienen auch der Pfarrer Leonhard Marx mit seinem Vikar, der ganze Konvent und die Schuljugend. Der Herr kam zu Wagen, stieg am Kreuz vor dem Tor ab und wurde in Prozession zur Pfarrkirche geführt, während das "Veni Creator" und das "Te Deum Laudamus" gesungen wurden. In der Nähe der Pfarrkirche hielt der Pfarrer eine Gratulationsrede. Der Amtmann hörte eine stille heilige Messe mit Andacht und zog anschließend auf das Schloss.
Vom 15. bis 28. April 1732 war der Kurfürst Clemens August mit seinem Bruder Ferdinand zur Jagd in Zons. Er hörte meistens die heilige Messe in Nievenheim, wohin er die Franziskanerpatres kommen ließ. Sonntags aber hörte er drei heilige Messen. Das Kloster erhielt außer den Messstipendien einen Hirschen und 5 Pistolen (Währung).
Am 11. April 1733 kam der Kurfürst von Köln wieder zur Jagd nach Zons und blieb dort drei volle Wochen. Täglich hörte er die heilige Messe, meistens in Nievenheim, sonntags ließ er dorthin zwei Franziskanerpatres zum Messelesen kommen. Dafür beschenkte er das Kloster reichlich und gab auch ein ganzes Wildschwein, zwei Hirsche und zwei Pinten Holz als Almosen. Am 19. April erschien er selbst mit seinem adeligen Geleit während des Essens feierlich im Speisesaal des Klosters, hieß die sich erhebenden Mönche sich setzen und im Essen fortfahren. Er blieb eine Viertelstunde mit seinen Dienern im Speisesaal und unterhielt sich mit ihnen über allerlei. Ihm und seiner Begleitung gewährte der Aufenthalt in Zons während der drei Wochen viel Freude.
Der Rhein stand in den Monaten Februar/März 1740 drei Wochen hindurch im Eis. Der Kaplan ging mit dem Sanctissimum hinüber nach Bürgel. Die Kälte hielt bis zum Mai an. Ende des Jahres war großes Hochwasser.
Am 27. April 1744 kam abends der Kurfürst nach Zons, um bei Nievenheim zu jagen, und blieb bis zum 18. Mai. Täglich hörte er die heilige Messe mit der Lauretanischen Litanei.
Am 17. Mai nahm der Kurfürst am Zonser Vogelschießen teil. Nachdem er Schützenkönig geworden war, erhielten die Bürger von ihm eine Ahm Wein. Die mit der Königswürde verbundenen Freiheiten und Begünstigungen schenkte er dem König aus dem Vorjahr Franz Schulmeister, dem Sohn des Schöffen Johann Peter Schulmeister.
Am 7. Februar 1756 starb in Köln Joseph Maria Sigismund Graf von Königsegg-Rothenfels, Herr in Aulendorf und Staufen, Kölner und Straßburger Domherr, des Gereonstifts Dekan, Kammerherr und Amtmann von Zons, im Alter von 56 Jahren, seit vier Jahren Priester.
Am 15. März 1756 kam der neue Amtmann Maximilian Friedrich Graf von Königsegg, der spätere Kurfürst, ohne Aufzug nach Zons und reiste am 24. März wieder ab nach Köln. Am 2. November aber hielt er in Zons feierlichen Einzug vor der St. Sebastianus-Schützenbruderschaft und der ganzen Bürgerschaft, unter Kanonendonner und mit Musik.
Während die Hannoveraner 1757 die Umgegend ausplünderten und mehrere Pfarrer zur Flucht nötigten, versahen die Patres deren Pfarreien, so in Weckhoven, Dormagen und Uedesheim.
Am 9. April 1758 kamen 900 französische Soldaten nach Zons. Der Pfarrer Damian Cremer hatte zwei Offiziere mit drei Dienern im Quartier. Sie blieben 8 Tage. Am 20. kamen wieder 200 französische Soldaten und zogen am 25. nach Köln.
Am 26. Juni kamen fünf hannoverische Soldaten, ließen gleich den Bürgermeister Lambert Braun zu sich kommen und verlangten Wein und 10 Reichstaler. Da die drei Zollherren nach Köln geflohen waren, verlangten sie von deren bedrängten Frauen Wein und Geld, wie auch vom Pfarrer Damian Cremer. Auch auf den Heckhof kamen sie. Der Besitzer Falkenberg war mit seiner einzigen Tochter geflohen. Sie nahmen Wein und alles mit und zogen ab. Am 29. kamen sie wieder, erpressten wieder Geld und plünderten drei Judenhäuser, einen wollten sie aufhängen. Den Bürgermeister zwangen sie wieder, 12 Reichstaler, Kaffee, Tee, Zucker und Wein zu geben. Später gingen sie fort und sagten dem Bürgermeister, er solle den Bürgern ausrichten, um 3 Uhr kämen 1.000 Hannoveraner, welchen sie alles Nötige geben müssten, aber sie kamen nicht, und das Auslegen war somit vergebens. Am 30. Juni kamen 12 Hannoveraner und pressten von den Vornehmen wieder Geld, auch vom Vikar, der Pfarrer Damian Cremer war nach Monheim geflohen. Bürgermeister Lambert Braun musste ihnen wieder im Namen der Stadt 400 Reichstaler und Lebensmittel geben, im Ganzen erhielten sie von der Stadt 2.000 Reichstaler. Unter den Pfarrern war große Furcht, mehrere flohen, so der Oekovener, Dormagener und Uedesheimer. Die Pfarreien wurden in dieser Zeit von den Franziskanern betreut.
Nachdem in den Monaten Juli, August und September des Jahres 1766 anhaltender Regen die Ernte beinahe verdorben hatte, trat in den folgenden Wochen große Dürre ein. Im Jahr 1767 fror der Rhein ganz zu, so dass man bis Ende Januar leicht mit Fuhrwerken hinüber fahren konnte.
Am 27. Juni 1767 starb in Zons Heribert Endenich, kurfürstlicher Hofkammerrat und Zonser Zollbeamter, geistlicher Vater des Konvents.
1774 erhielt der Guardian Pater Anno Stockem von dem Domdechant und Weihbischof Karl Aloys Graf von Königsegg-Aulendorf die Erlaubnis, eine Reliquie vom heiligen Kreuz und eine Reliquie vom Schleier der Muttergottes in der Klosterkirche öffentlich zur Verehrung auszusetzen. Der Guardian nahm diese Reliquien jedoch mit und behielt sie für sich.
Am 9. April war der Dompropst und Amtmann Graf Joseph Karl Wunibald Erbtruchsess auf dem Schloss. Unerwartet besuchten ihn der Nuntius von Köln Giovanni Battista Caprara mit dem Baron Hatzfeld und dem Domherrn Graf Franz Wilhelm von Öttingen-Baldern. Am 12. reisten die Gäste wieder ab.
Am Fest des heiligen Antonius (13. Juni) las der Amtmann Graf Truchsess bei den Franziskanern die heilige Messe.
Am Portiunkulatag (2. August) 1776 war der Amtmann Graf Truchsess im Hochamt, das sein Kaplan, der Vikar an St. Gereon, hielt.
Am 19. März 1778 weihte und taufte der Guardian feierlich eine Glocke für die Stürzelberger Kapelle.
Am 7. August 1782 zerschlug der Hagel alle zur Ostseite gelegenen Fenster der Kirche und des Klosters. Ein neues Fenster schenkte der Abt von Brauweiler Anselm Aldenhoven, ein zweites der Abt von Knechtsteden Michael Hendel, ein drittes der Stadtrat von Zons, ein viertes der Beseher Johann le Bruin, ein weiteres eine Person, die unbekannt bleiben wollte. Das Domkapitel ließ ein Fenster des Klosters restaurieren.
Eine der größten Rheinüberschwemmungen war die vom 28. Februar 1784: Eine große Kälte, schlimmer als die im Jahr 1709, als das Bier in den Kellern befror, begann am 8. Dezember 1783 und dauerte bis zum 27. Dezember. Das vom Oberrhein heranschwimmende Eis türmte sich am 27. Februar 1784 wie ein Berg auf und bot einen schrecklichen Anblick. Die Wassermassen warfen die Stadtmauer an der Rheinstraße um und durchbrachen den Rheindamm unterhalb Zons, wodurch sich der Rhein in fünf oder sechs Arme teilte, was für Zons eine Erleichterung darstellte. Der Abt von Knechtsteden Michael Hendel schickte den Armen in Zons 100 20-pfündige Brote, auch dem Konvent schickte er Nahrungsmittel und Bier. Das Domkapitel schickte auch den Armen Brot und Käse. Im Kloster stand das Wasser sechs Fuß (ca. 172 cm) hoch.
1785: Da der Erzbischof verordnet hatte, dass Prozessionen, die vor Sonnenaufgang ausziehen mussten und vor Sonnenuntergang nicht zurückkehren konnten, unterbleiben sollten, fielen die Prozession nach Bethlehem und die nach Kevelaer aus. Stattdessen wurde eine Prozession durch die Stadt gehalten.
Im Januar 1792 ergriffen Kölner Husaren vier berüchtigte Diebe in hiesiger Gegend, die in Köln gestohlen hatten. Drei wurden in Zons ins Gefängnis (Juddeturm) geworfen. Der Jüngste, ein Chirurg, machte sich ein Seil aus Stroh und entfloh aus dem Turm, obwohl er 25 Fuß (ca. 7,20 m) auf- und absteigen musste. Er suchte im Kloster Hilfe, und der Guardian Marius Strauch verhalf ihm zur Flucht.[97]
Am 20. August 1793 starb auf dem Heckhof Gudula geborene Ploogs, die Witwe des Hilarius Geyr, im Alter von 89 Jahren, frühere Verwalterin des Stöckemhofs in der Pfarre Esch. Sie wurde am 22. August in der Klosterkirche begraben.
Am 11. Juli 1794 floh die ganze Abtei der Prämonstratenser von St. Cornelium in Lüttich wegen der Franzosen und kam mit allen Schätzen am 14. nach Zons. 21 Kanoniker mit ihrem Abt wurden auf dem Schloss aufgenommen, andere, Franziskaner wie auch französische Emigranten, wurden im Konvent aufgenommen. Am Portiunkulatag (2. August) hielt der Abt von Lüttich Pontifikalamt und begleitete mit allen seinen Kanonikern die Prozession durch die Stadt. Am 12. August hielt der Kanoniker der Stiftskirche zum heiligen Jakobus in Lüttich, Herr von Baral, das feierliche Hochamt.
Am 6. November 1800 kam Pater Kappes an. Damit schließen die Annalen.
Sonstiges
Am 13. Februar 1749 vormittags um 11 Uhr ertrank im Beisein des Guardians Chrysanthus Langen der Pater Casimir Hansen im Rhein bei Urdenbach. Er wurde am folgenden Tag von 8 Zonser Junggesellen in die Franziskanerkirche getragen und nach den Exequien zu Grab getragen.[98]
Belege
- ↑ Johannes Kistenich, Bettelmönche im öffentlichen Schulwesen. Ein Handbuch für die Erzdiözese Köln 1600 bis 1850, Bd. 1, Köln u.a. 2001, S. 1496-1499.
- ↑ Johannes Kistenich, Dormagen-Zons – Franziskaner, in: Manfred Groten u.a. (Hgg.): Nordrheinisches Klosterbuch, Lexikon der Stifte und Klöster bis 1815, Teil 1: Aachen bis Düren (= Studien zur Kölner Kirchengeschichte, 37. Bd., 1. Teil), Siegburg 2009, S. 497-505; hier: S. 499.
- ↑ Am 12. Januar 1632 machte das Ehepaar Johannes Sturm und Catharina Nievenheim vor Pfarrer Andreas Winckens eine Schenkung über die Zinseinkünfte (5% jährlich, zu zahlen jeweils am 25. Dezember) von 100 Talern zugunsten der Armen(kasse), abgesichert durch eine entsprechende Hypothek auf ein Haus mit Hof des Schuldner-Ehepaars Johann Stüttgen (Antoniter-Halfe in Rheinfeld) und Catharina Reisholtz, "alhier binnen Zons ahn der Feldtpfortzen gelegen, ihns West die Stadtmauhr". Dieses Haus (wahrscheinlich ein Vorgängergebäude des heutigen Hauses Schloßstraße 57) sollte an die Hausarmen fallen, falls die Schuldner den Zinszahlungen nicht nachkommen. Ob es sich hierbei um das Haus handelte, das die Patres bezogen, lässt sich leider nicht mit Bestimmtheit sagen.
- ↑ Konzeptschreiben der Urkunde des Domkapitels vom 14. November 1646 in: HAStK, Best. 210, A 3187, p. 1133-1134.
- ↑ Adam Otten, Zons am Rhein, Düsseldorf 1903, S. 110-111.
- ↑ Johannes Kistenich, Bettelmönche im öffentlichen Schulwesen. Ein Handbuch für die Erzdiözese Köln 1600 bis 1850, Bd. 1, Köln u.a. 2001, S. 1495-1496.
- ↑ LAV_NRW_R, Nachlass Eschbach, Nr. 5 (basierend auf dem ersten Band der Annalen des Zonser Franziskanerklosters: Archiv der deutschen Franziskanerprovinz, AKF 1, Tr 5, wie auch die folgenden Angaben bis 1670, wenn nicht anders angegeben.
- ↑ HAStK, Best. 210, A 3187, p. 1135-1136.
- ↑ PfAZ, Nr. 5.
- ↑ Archiv der deutschen Franziskanerordensprovinz, AKF 1, Tr. 5, p. 12.
- ↑ HAStK, Best. 210, A 3186, zwischen p. 448 und 449.
- ↑ PfAZ, Nr. 492, unpagin.
- ↑ PfAZ, Nr. 492, unpagin.
- ↑ PfAZ, Nr. 492; Johannes Kistenich, Dormagen-Zons – Franziskaner, in: Manfred Groten u.a. (Hgg.): Nordrheinisches Klosterbuch, Lexikon der Stifte und Klöster bis 1815, Teil 1: Aachen bis Düren (= Studien zur Kölner Kirchengeschichte, 37. Bd., 1. Teil), Siegburg 2009, S. 497-505; hier: S. 504.
- ↑ PfAZ, Nr. 492, unpagin.
- ↑ PfAZ, Nr. 492, unpagin.
- ↑ Siehe Tagebuchaufzeichnungen des Johann Peter Delhoven.
- ↑ PfAZ, Nr. 493, unpagin.; Schwieren-Chroniken, <495>, <1051>
- ↑ LAV_NRW_R, Roer-Dép., Nr. 469.
- ↑ Lisken-FBZ, S. 165.
- ↑ Lisken-FBZ, S. 166.
- ↑ Schwieren-Chroniken, <157>.
- ↑ PfAZ, Nr. 6, p. 190-191.
- ↑ Johannes Kistenich, Dormagen-Zons – Franziskaner, in: Manfred Groten u.a. (Hgg.): Nordrheinisches Klosterbuch, Lexikon der Stifte und Klöster bis 1815, Teil 1: Aachen bis Düren (= Studien zur Kölner Kirchengeschichte, 37. Bd., 1. Teil), Siegburg 2009, S. 497-505; hier: S. 499 (Angaben und Zitat basierend auf den Annalen der Franziskaner).
- ↑ PfAZ, Nr. 492, unpagin.
- ↑ PfAZ, Nr. 492, unpagin.
- ↑ PfAZ, Nr. 492, unpagin.
- ↑ PfAZ, Nr. 492, unpagin.
- ↑ Schwieren-Chroniken, <3>.
- ↑ PfAZ, Nr. 577, fol. 54r.
- ↑ Daniel Hinz/ Thomas Schwabach: Digitale 3D-Rekonstruktion des ehemaligen Franziskanerklosters in Dormagen-Zons, in: Jahrbuch für den Rhein-Kreis Neuss 2026 (2025), S. 46-75.
- ↑ Johannes Kistenich, Dormagen-Zons – Franziskaner, in: Manfred Groten u.a. (Hgg.): Nordrheinisches Klosterbuch, Lexikon der Stifte und Klöster bis 1815, Teil 1: Aachen bis Düren (= Studien zur Kölner Kirchengeschichte, 37. Bd., 1. Teil), Siegburg 2009, S. 497-505; hier: S. 502.
- ↑ Johannes Kistenich, Dormagen-Zons – Franziskaner, in: Manfred Groten u.a. (Hgg.): Nordrheinisches Klosterbuch, Lexikon der Stifte und Klöster bis 1815, Teil 1: Aachen bis Düren (= Studien zur Kölner Kirchengeschichte, 37. Bd., 1. Teil), Siegburg 2009, S. 497-505; hier: S. 499 (Angaben und Zitat basierend auf den Annalen der Franziskaner).
- ↑ Johannes Kistenich, Dormagen-Zons – Franziskaner, in: Manfred Groten u.a. (Hgg.): Nordrheinisches Klosterbuch, Lexikon der Stifte und Klöster bis 1815, Teil 1: Aachen bis Düren (= Studien zur Kölner Kirchengeschichte, 37. Bd., 1. Teil), Siegburg 2009, S. 497-505; hier: S. 499 (Angaben und Zitat basierend auf den Annalen der Franziskaner).
- ↑ Auflistung v.a. basierend auf: Johannes Kistenich, Dormagen-Zons – Franziskaner, in: Manfred Groten u.a. (Hgg.): Nordrheinisches Klosterbuch, Lexikon der Stifte und Klöster bis 1815, Teil 1: Aachen bis Düren (= Studien zur Kölner Kirchengeschichte, 37. Bd., 1. Teil), Siegburg 2009, S. 497-505; hier: S. 505.
- ↑ Johannes Kistenich, Dormagen-Zons – Franziskaner, in: Manfred Groten u.a. (Hgg.): Nordrheinisches Klosterbuch, Lexikon der Stifte und Klöster bis 1815, Teil 1: Aachen bis Düren (= Studien zur Kölner Kirchengeschichte, 37. Bd., 1. Teil), Siegburg 2009, S. 497-505; hier: S. 500.
- ↑ Johannes Kistenich, Dormagen-Zons – Franziskaner, in: Manfred Groten u.a. (Hgg.): Nordrheinisches Klosterbuch, Lexikon der Stifte und Klöster bis 1815, Teil 1: Aachen bis Düren (= Studien zur Kölner Kirchengeschichte, 37. Bd., 1. Teil), Siegburg 2009, S. 497-505; hier: S. 501.
- ↑ Johannes Kistenich, Dormagen-Zons – Franziskaner, in: Manfred Groten u.a. (Hgg.): Nordrheinisches Klosterbuch, Lexikon der Stifte und Klöster bis 1815, Teil 1: Aachen bis Düren (= Studien zur Kölner Kirchengeschichte, 37. Bd., 1. Teil), Siegburg 2009, S. 497-505; hier: S. 500.
- ↑ Johannes Kistenich, Dormagen-Zons – Franziskaner, in: Manfred Groten u.a. (Hgg.): Nordrheinisches Klosterbuch, Lexikon der Stifte und Klöster bis 1815, Teil 1: Aachen bis Düren (= Studien zur Kölner Kirchengeschichte, 37. Bd., 1. Teil), Siegburg 2009, S. 497-505; hier: S. 500-501.
- ↑ Johannes Kistenich, Dormagen-Zons – Franziskaner, in: Manfred Groten u.a. (Hgg.): Nordrheinisches Klosterbuch, Lexikon der Stifte und Klöster bis 1815, Teil 1: Aachen bis Düren (= Studien zur Kölner Kirchengeschichte, 37. Bd., 1. Teil), Siegburg 2009, S. 497-505; hier: S. 498-499.
- ↑ Johannes Kistenich, Dormagen-Zons – Franziskaner, in: Manfred Groten u.a. (Hgg.): Nordrheinisches Klosterbuch, Lexikon der Stifte und Klöster bis 1815, Teil 1: Aachen bis Düren (= Studien zur Kölner Kirchengeschichte, 37. Bd., 1. Teil), Siegburg 2009, S. 497-505; hier: S. 501.
- ↑ PfAZ, Nr. 492, unpagin.
- ↑ PfAZ, Nr. 492, unpagin.
- ↑ PfAZ, Nr. 492, unpagin.
- ↑ PfAZ, Nr. 492, unpagin.
- ↑ PfAZ, Nr. 492, unpagin.
- ↑ Sein Grab ist im Zusammenhang mit dem des Trechaton erwähnt (s.u.).
- ↑ PfAZ, Nr. 492, unpagin.
- ↑ PfAZ, Nr. 492, unpagin.
- ↑ PfAZ, Nr. 492, unpagin.; siehe Beisetzung Anna Catharina Kohl unten.
- ↑ Grab erwähnt im Zusammenhang mit der folgenden Beisetzung von Jacob Horn.
- ↑ PfAZ, Nr. 492, unpagin. (Eintrag zum 4. Juli 1703).
- ↑ Grab erwähnt im Zusammenhang mit der folgenden Beisetzung von Jacob Horn.
- ↑ PfAZ, Nr. 492, unpagin.
- ↑ PfAZ, Nr. 492, unpagin.
- ↑ PfAZ, Nr, 492, unpagin.
- ↑ PfAZ, Nr. 492, unpagin.
- ↑ PfAZ, Nr. 492, unpagin.; Lisken-FBZ, S. 876.
- ↑ PfAZ, Nr. 492, unpagin.; Lisken-FBZ, S. 876.
- ↑ PfAZ, Nr. 492, unpagin.; Lisken-FBZ, S. 412.
- ↑ Lisken-FBZ', S. 847.
- ↑ PfAZ, Nr. 492, unpagin.
- ↑ PfAZ, Nr. 492, unpagin.
- ↑ PfAZ, Nr. 493, unpagin.; Lisken-FBZ, S. 883.
- ↑ PfAZ, Nr, 492, unpagin.
- ↑ PfAZ, Nr. 492, unpagin.
- ↑ Johannes Kistenich, Dormagen-Zons – Franziskaner, in: Manfred Groten u.a. (Hgg.): Nordrheinisches Klosterbuch, Lexikon der Stifte und Klöster bis 1815, Teil 1: Aachen bis Düren (= Studien zur Kölner Kirchengeschichte, 37. Bd., 1. Teil), Siegburg 2009, S. 497-505; hier: S. 500.
- ↑ Johannes Kistenich, Dormagen-Zons – Franziskaner, in: Manfred Groten u.a. (Hgg.): Nordrheinisches Klosterbuch, Lexikon der Stifte und Klöster bis 1815, Teil 1: Aachen bis Düren (= Studien zur Kölner Kirchengeschichte, 37. Bd., 1. Teil), Siegburg 2009, S. 497-505; hier: S. 501-502.
- ↑ Johannes Kistenich, Dormagen-Zons – Franziskaner, in: Manfred Groten u.a. (Hgg.): Nordrheinisches Klosterbuch, Lexikon der Stifte und Klöster bis 1815, Teil 1: Aachen bis Düren (= Studien zur Kölner Kirchengeschichte, 37. Bd., 1. Teil), Siegburg 2009, S. 497-505; hier: S. 503.
- ↑ PfAZ, Nr. 493.
- ↑ Hans Pohl, Die Stadt Zons in der Zeit der französischen Herrschaft (1794-1814), Teil 2, in: BlGZSt, Bd. V (1987), S. 41-60, hier: S. 50-51.
- ↑ Johannes Kistenich, Dormagen-Zons – Franziskaner, in: Manfred Groten u.a. (Hgg.): Nordrheinisches Klosterbuch, Lexikon der Stifte und Klöster bis 1815, Teil 1: Aachen bis Düren (= Studien zur Kölner Kirchengeschichte, 37. Bd., 1. Teil), Siegburg 2009, S. 497-505; hier: S. 498; Hans Pohl, Die Stadt Zons in der Zeit der französischen Herrschaft (1794-1814), Teil 2, in: BlGZSt, Bd. V (1987), S. 41-60, hier: S. 51.
- ↑ Hans Pohl, Die Stadt Zons in der Zeit der französischen Herrschaft (1794-1814), Teil 2, in: BlGZSt, Bd. V (1987), S. 41-60, hier: S. 51.
- ↑ Schwieren-Chroniken, <1091>; Hans Pohl, Die Stadt Zons in der Zeit der französischen Herrschaft (1794-1814), Teil 2, in: BlGZSt, Bd. V (1987), S. 41-60, hier: S. 50.
- ↑ Siehe das Tagebuch des Johann Peter Delhoven.
- ↑ Schwieren-Chroniken, <1091>.
- ↑ Lisken-FBZ, S. 868.
- ↑ Lisken-FBZ, S. 875.
- ↑ Lisken-FBZ, S. 892.
- ↑ PfAZ, Nr. 857, unpagin. (1802).
- ↑ PfAZ, Nr. 492 und 493.
- ↑ Archiv der Deutschen Franziskanerprovinz, AKF, Tr. 5.
- ↑ Fragmente einer Chronik (1741-1800): Tr. 95.
- ↑ Johannes Kistenich, Dormagen-Zons – Franziskaner, in: Manfred Groten u.a. (Hgg.): Nordrheinisches Klosterbuch, Lexikon der Stifte und Klöster bis 1815, Teil 1: Aachen bis Düren (= Studien zur Kölner Kirchengeschichte, 37. Bd., 1. Teil), Siegburg 2009, S. 497-505; hier: S. 502.
- ↑ Hans Pohl, Die Stadt Zons in der Zeit der französischen Herrschaft (1794-1814), Teil 2, in: BlGZSt, Bd. V (1987), S. 41-60, hier: S. 52.
- ↑ Schwieren-Chroniken, <1091>.
- ↑ Die Familie wohnte mindestens bis 1806 im Ort: Lisken-FBZ, S. 275.
- ↑ Hans Pohl, Die Stadt Zons in der Zeit der französischen Herrschaft (1794-1814), Teil 2, in: BlGZSt, Bd. V (1987), S. 41-60, hier: S. 52.
- ↑ Stadtarchiv Neuss, Akten franz. Verw., Nr. 238.
- ↑ Siehe Schwieren-Chroniken, <1100> und Tagebuch des Johann Peter Delhoven.
- ↑ Lisken-FBZ, S. 718.
- ↑ Das "Rochushäuschen" existiert noch heute in der Hannepützheide, am Weg von Stürzelberg nach Dormagen.
- ↑ Da die eigentliche Kirchweihe am 4. März 1666 stattgefunden hatte (s.o.), wird der Termin verlegt worden sein.
- ↑ Höchstwahrscheinlich ist das Feldtor gemeint.
- ↑ Vermutlich handelte es sich um den Küster und Lehrer Christian Schmitz, der am 4. August 1668, also kurz nach den Ereignissen, starb: Lisken-FBZ, S. 886.
- ↑ Es handelte sich möglicherweise um ein Retabel für den bereits existierenden Franziskusaltar.
- ↑ Schwieren-Chroniken, <494>.
- ↑ Siehe Schwieren-Chroniken, <225>.